Stuurmankade 48, Amsterdam

Vraagprijs € 875.000 k.k.

  Kan ik deze woning betalen?

Aan de Stuurmankade 48 komen rust, ruimte en privacy samen met een prachtig uitzicht over het water. Deze bijzondere vier-/vijfkamer woning met royaal dakterras is gelegen in een uniek complex op Borneo-eiland in het Oostelijk Havengebied. *English text below*...
Lees meer

Beeldmateriaal

Stuurmankade 48, Amsterdam

Stuurmankade 48, Amsterdam
Stuurmankade 48, Amsterdam Stuurmankade 48, Amsterdam Stuurmankade 48, Amsterdam Stuurmankade 48, Amsterdam

Omschrijving

Aan de Stuurmankade 48 komen rust, ruimte en privacy samen met een prachtig uitzicht over het water. Deze bijzondere vier-/vijfkamer woning met royaal dakterras is gelegen in een uniek complex op Borneo-eiland in het Oostelijk Havengebied. *English text below*...
Lees meer

Kenmerken

Adres
Stuurmankade 48, 1019 KR Amsterdam
Woonoppervlakte
ca. 123m²
Inhoud
ca. 411m³
Aantal kamers
4
Bouwjaar
1997
Energielabel
B
Alle kenmerken

Kenmerken

Aanvaarding

Bijdrage VVE
€ 212
Status
Verkocht
Oplevering
In overleg
Adres
Stuurmankade 48
Postcode
1019 KR
Plaats
Amsterdam

Bouw

Soort appartement
Bovenwoning, Appartement
Soort bouw
Bestaande bouw
Bouwjaar
1997
Onderhoud binnen
Goed
Onderhoud buiten
Goed

Oppervlakten en inhoud

Woonoppervlakte
ca. 123m²
Inhoud
ca. 411m³

Indeling

Aantal kamers
4
Aantal slaapkamers
4
Aantal badkamers
1
Aantal verdiepingen
3
Voorzieningen
Mechanische ventilatie, TV-Kabel, Glasvezel kabel

Energie

Energielabel
B
Isolatie
HR-glas
Warm water
Stadsverwarming
Verwarming
Stadsverwarming

Buitenruimte

Ligging
Aan het water, Aan rustige weg, In woonwijk, Vrij uitzicht
Schuur
Inpandig

Omschrijving

Aan de Stuurmankade 48 komen rust, ruimte en privacy samen met een prachtig uitzicht over het water. Deze bijzondere vier-/vijfkamer woning met royaal dakterras is gelegen in een uniek complex op Borneo-eiland in het Oostelijk Havengebied.
*English text below*
Indeling:
Het gemeenschappelijke trappenhuis brengt je naar de eerste verdieping, waar de entree is. Vanuit de hal heb je toegang tot twee ruime slaapkamers met uitzicht over de rustige binnentuin. Hier bevindt zicht ook de moderne en luxe badkamer die is voorzien van een inloopdouche, wastafelmeubel, een ligbad en vloerverwarming. In de hal is een toilet en een bergingskast met de wasmachineaansluiting.
De interne trap brengt je naar de tweede verdieping. Hier vind je een speels ingedeelde woonkamer met een heerlijke ruim opgezette woonkeuken met een breed kookeiland en een eetbar. De keuken is voorzien van alle benodigde inbouwapparatuur. De woonkamer heeft aan de voorzijde twee openslaande deuren en vanuit hier heb je vrij uitzicht over het water. De woonkamer is licht dankzij de ramen aan de voor- en achterzijde en twee lichtkoepels.
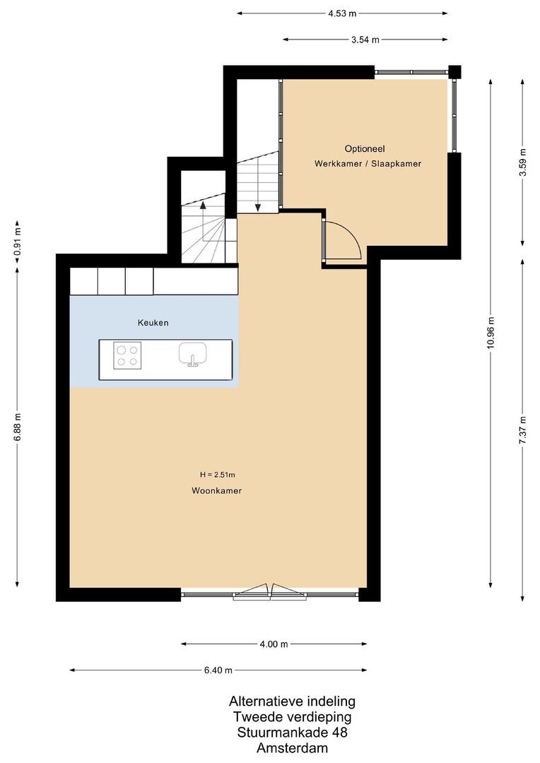
Aan de achterzijde van de woonkamer is een mogelijkheid om een extra (vierde) slaapkamer te creëren door het plaatsen van een (glazen) tussenwand. Er is een optionele plattegrond aanwezig waarin deze mogelijkheid staat weergegeven. De interne trap brengt je naar de derde verdieping. Hier is een overloop met aansluitend een ruime werk-/slaapkamer. Vanuit de slaapkamer zijn er twee openslaande deuren naar het vrij gelegen en beschutte dakterras van maar liefst ca. 43 m². In de onderbouw is er een fietsenberging aanwezig, uitsluitend voor deze woning.

Erfpacht:
Het betreft een voortdurend recht van erfpacht. De canon is tot 15 april 2046 vooruitbetaald. Verkopers hebben in 2023 een aanvraag gedaan voor de overstap naar het eeuwigdurende erfpachtstelsel. Deze gunstige voorwaarden kunnen worden overgenomen door de koper.

Vereniging van Eigenaars:
Het betreft een kleinschalige en actieve VvE met betrokken eigenaren.
Het appartementencomplex BO-1 (bouwjaar 1997) is ontworpen door CASA architecten in nauwe samenwerking met de bewoners. Deze hebben grote invloed gehad op de indeling van de appartementen en het ontwerp van het complex. Geen woning in hier dan ook hetzelfde. Daarnaast worden appartementen afgewisseld met commerciële ruimtes die met name door de bewoners zelf worden gebruikt.
Bijzonder: je wordt mede-eigenaar van een appartement van de VvE, De Kalimantan. Dit is een compleet uitgerust appartement waar buren voor en met elkaar activiteiten organiseren. En de kamers zijn te reserveren voor een sympathiek bedrag, ideaal wanneer je gasten hebt.
De VvE beschikt over een Meerjaren Onderhoudsplan en er zijn zonnepanelen geplaatst ten behoeve van het stroomverbruik van de gemeenschappelijke ruimten.
De maandelijkse servicekosten bedragen € 212,14.

Technische gegevens:
De woning is in 2020 geheel intern gerenoveerd. De wanden en plafonds zijn gestuukt. De badkamer en keuken zijn vernieuwd en er is een linoleum vloer aangebracht. De woning is voorzien van stadsverwarming en de gehele woning is voorzien van vloerverwarming. Er is HR dubbele beglazing aanwezig. Er is een Energielabel B afgegeven.

Omgeving:
Op loopafstand vind je winkelcentrum Brazilië met diverse winkels, scholen, een traiteur, woonwinkels, sportscholen, het Lloyd Hotel, Club Panama en nog veel meer. Daarnaast zijn de Javastraat en Czaar Peterstraat, bekend om hun diversiteit aan winkels en restaurants, op loopafstand. Voor liefhebbers van wateractiviteiten is er een buurtjachthaven en zeilschool. En met twee zwemsteigers op slechts 50 meter afstand is een verfrissende duik nooit ver weg.
Dit alles maakt het Oostelijk Havengebied een zeer gewilde woonbuurt in Amsterdam.
De bereikbaarheid van dit gebied is uitstekend. Met de fiets ben je binnen 15 minuten in het stadscentrum of op het Centraal Station. Daarnaast bieden bus- en tramverbindingen snelle toegang tot het centrum en het station. Het Oostveer biedt een uitstekende verbinding naar Amsterdam Noord, met onder andere populaire eetgelegenheden als De Goudfazant en Hangar. Voor automobilisten is de A10 via de Piet Heintunnel snel te bereiken.

Kortom een heerlijke turn-key gezinswoning met de optie voor een vierde slaapkamer en een riant dakterras! Wij nodigen je graag uit voor een uitgebreide bezichtiging!

Bijzonderheden:
- Bouwjaar 1997;
- Erfpachtcanon vooruitbetaald tot 2046;
- Er is een Energielabel B afgegeven;
- Woning is intern genoveerd in 2020;
- Mogelijkheid om eenvoudig een extra vierde slaapkamer te creëren;
- Gebruiksoppervlakte wonen conform de BBMI / NEN 2580 meting: 122,5 m²
- Gebouw gebonden buitenruimte (dakterras): 42.8 m²;
- Externe bergruimte: 6,2 m²;
- Verwarming en warm water middels Stadsverwarming;
- Overstap mogelijk op eeuwigdurende erfpacht onder gunstige voorwaarden;
- Voldoende parkeergelegenheid op de openbare weg middels bewonersvergunning;
- Kindvriendelijke woonomgeving;
- Aanvaarding in overleg.
- Projectnotaris Veenhof Notariaat

At Stuurmankade 48 a peacefull atmosphere, space and privacy comes together with a beautiful view over the water.
This special three/four bed-room appartement with a spacious roof terrace is located in a unique complex on Borneo Island in the Eastern Docklands.

Layout:
The communal staircase takes you to the first floor, where the entrance is. From the hall you have access to two spacious bedrooms with a view over the quiet courtyard garden. Here you will also find the modern and luxurious bathroom with a walk-in shower, washbasin, a bath and underfloor heating. In the hall is a toilet and a storage cupboard with the washing machine connection.
The internal staircase takes you to the second floor. Here you will find a playfully laid out living room with a lovely spacious kitchen with a wide cooking island and a breakfast bar. The kitchen is equipped with all necessary appliances. The living room has two patio doors at the front and from here you have an unobstructed view over the water. The living room is bright thanks to the windows at the front and rear and two skylights.
At the rear of the living room is a possibility to create an extra (fourth) bedroom by placing a (glass) partition. There is an optional map in which this option is displayed. The internal staircase takes you to the third floor. Hereis a landing followed by a spacious work/bedroom. From the bedroom there are two patio doors to the secluded and sheltered roof terrace of approx. 43 m². There is a bicycle shed in the basement, exclusively for this house.

Leasehold:
It concerns a continuous right of leasehold. The ground rent is prepaid until April 15, 2046. Sellers applied for the switch to the perpetual leasehold system in 2023. These favorable conditions can be taken over by the buyer.

Owners' Association:
It is a small-scale and active VvE with committed owners. The BO-1 apartment complex (built in 1997) was designed by CASA architects in close collaboration with the residents. These have had a major influence on the layout of the apartments and the design of the complex. No house in heris the same. In addition, apartments are interspersed with commercial spaces that are mainly used by the residents themselves.
Special: you become co-owner of an apartment of the VvE, De Kalimantan. This is a fully equipped apartment where neighbors organize activities for and with each other. And the rooms can be rentedfor a sympathetic amount, ideal when you have guests.
The VvE has a Multi-Year Maintenance Plan and solar panels have been installed for the power consumption of the common areas. The monthly service costs are € 212.14.

Technical data:
The house was completely renovated internally in 2020 . The walls and ceilings are plastered. The bathroom and kitchen have been renovated and a linoleum floor has been installed. The house is equipped with City heating and the entire house has underfloor heating. There is HR double glazing. An Energy Label B has been issued.

Surroundings:
Within walking distance you will find the Brazil shopping center with various shops, schools, a caterer, home furnishing stores, gyms, the Lloyd Hotel, Club Panama and much more. In addition, the Javastraat and Czaar Peterstraat, known for their diversity of shops and restaurants, are within walking distance. For lovers of water activities, there is a neighborhood marina and sailing school. And with two bathing jetties just 50 metres away, a refreshing dip is never far away. All this makes the Eastern Docklands a very popular residential living area in Amsterdam. The accessibility of the area is excellent. You can reach the city center or Central Station within 15 minutes by bike. In addition, bus and tram connections provide quick access to the city centre and the station. The Oostveer offers an excellent connection to Amsterdam North, including popular eateries such as De Goudfazant and Hangar. For motorists, the A10 can be reached quickly via the Piet Hein tunnel.

In short, a wonderful turn-key family home with the option for a fourth bedroom and a spacious roof terrace! We would like to invite you for an extensive viewing!

Particularities:
- Year of construction 1997;
- Ground rent prepaid until 2046;
- An Energy label B has been issued;
- Property has been renovated internally in 2020;
- Possibility to easily create an extra fourth bedroom;
- Usable living area in accordance with the BBMI / NEN 2580 measurement: 122.5 m²
- Building-related outdoor space (roof terrace): 42.8 m²;
- External storage space: 6.2 m²;
- Floor heating throughout the entire appartement;
- Heating and hot water through City heating;
- Possibility to switch to perpetual leasehold under favorable conditions conditions;
- Sufficient parking on the public road through a resident permit;
- Child-friendly living environment;
- Acceptance in consultation
- Projectnotary Veenhof

Foto's

Stuurmankade 48, Amsterdam foto-0
Stuurmankade 48, Amsterdam foto-1
Stuurmankade 48, Amsterdam foto-2
Stuurmankade 48, Amsterdam foto-3
Stuurmankade 48, Amsterdam foto-4
Stuurmankade 48, Amsterdam foto-5
Stuurmankade 48, Amsterdam foto-6
Stuurmankade 48, Amsterdam foto-7
Stuurmankade 48, Amsterdam foto-8
Stuurmankade 48, Amsterdam foto-9
Stuurmankade 48, Amsterdam foto-10
Stuurmankade 48, Amsterdam foto-11
Stuurmankade 48, Amsterdam foto-12
Stuurmankade 48, Amsterdam foto-13
Stuurmankade 48, Amsterdam foto-14
Stuurmankade 48, Amsterdam foto-15
Stuurmankade 48, Amsterdam foto-16
Stuurmankade 48, Amsterdam foto-17
Stuurmankade 48, Amsterdam foto-18
Stuurmankade 48, Amsterdam foto-19
Stuurmankade 48, Amsterdam foto-20
Stuurmankade 48, Amsterdam foto-21
Stuurmankade 48, Amsterdam foto-22
Stuurmankade 48, Amsterdam foto-23
Stuurmankade 48, Amsterdam foto-24
Stuurmankade 48, Amsterdam foto-25
Stuurmankade 48, Amsterdam foto-26
Stuurmankade 48, Amsterdam foto-27
Stuurmankade 48, Amsterdam foto-28
Stuurmankade 48, Amsterdam foto-29
Stuurmankade 48, Amsterdam foto-30
Stuurmankade 48, Amsterdam foto-31
Stuurmankade 48, Amsterdam foto-32
Stuurmankade 48, Amsterdam foto-33
Stuurmankade 48, Amsterdam foto-34
Stuurmankade 48, Amsterdam foto-35
Stuurmankade 48, Amsterdam foto-36
Stuurmankade 48, Amsterdam foto-37
Stuurmankade 48, Amsterdam foto-38
Stuurmankade 48, Amsterdam foto-39
Stuurmankade 48, Amsterdam foto-40
Stuurmankade 48, Amsterdam foto-41
Stuurmankade 48, Amsterdam foto-42
Stuurmankade 48, Amsterdam foto-43
Stuurmankade 48, Amsterdam foto-44
Verkocht

Plattegronden

Stuurmankade 48, Amsterdam plattegrond-0
Stuurmankade 48, Amsterdam plattegrond-1
Stuurmankade 48, Amsterdam plattegrond-2
Stuurmankade 48, Amsterdam plattegrond-3
Stuurmankade 48, Amsterdam plattegrond-4

Locatie

[ { "address": "Stuurmankade 48", "zipCode": "1019 KR", "city": "Amsterdam", "lat": 52.3715742, "lng": 4.9408431, "heading": 0, "pitch": 0 } ]
[ { "featureType": "all", "elementType": "geometry.fill", "stylers": [ { "weight": "2.00" } ] }, { "featureType": "all", "elementType": "geometry.stroke", "stylers": [ { "color": "#9c9c9c" } ] }, { "featureType": "all", "elementType": "labels.text", "stylers": [ { "visibility": "on" } ] }, { "featureType": "landscape", "elementType": "all", "stylers": [ { "color": "#f2f2f2" } ] }, { "featureType": "landscape", "elementType": "geometry.fill", "stylers": [ { "color": "#ffffff" } ] }, { "featureType": "landscape.man_made", "elementType": "geometry.fill", "stylers": [ { "color": "#ffffff" } ] }, { "featureType": "poi", "elementType": "all", "stylers": [ { "visibility": "off" } ] }, { "featureType": "road", "elementType": "all", "stylers": [ { "saturation": -100 }, { "lightness": 45 } ] }, { "featureType": "road", "elementType": "geometry.fill", "stylers": [ { "color": "#eeeeee" } ] }, { "featureType": "road", "elementType": "labels.text.fill", "stylers": [ { "color": "#7b7b7b" } ] }, { "featureType": "road", "elementType": "labels.text.stroke", "stylers": [ { "color": "#ffffff" } ] }, { "featureType": "road.highway", "elementType": "all", "stylers": [ { "visibility": "simplified" } ] }, { "featureType": "road.arterial", "elementType": "labels.icon", "stylers": [ { "visibility": "off" } ] }, { "featureType": "transit", "elementType": "all", "stylers": [ { "visibility": "off" } ] }, { "featureType": "water", "elementType": "all", "stylers": [ { "color": "#46bcec" }, { "visibility": "on" } ] }, { "featureType": "water", "elementType": "geometry.fill", "stylers": [ { "color": "#c8d7d4" } ] }, { "featureType": "water", "elementType": "labels.text.fill", "stylers": [ { "color": "#070707" } ] }, { "featureType": "water", "elementType": "labels.text.stroke", "stylers": [ { "color": "#ffffff" } ] } ]