Danie Theronstraat 13 D, Amsterdam
Vraagprijs € 675.000 k.k.
						Dit heerlijk lichte en keurig onderhouden appartement van circa 89 m² ligt op de bovenste twee verdiepingen van een karakteristiek jaren ’20-pand, gelegen in één van de leukste straten van de populaire Transvaalbuurt. Eeuwig afgekochte erfpacht.  
 
Locatie 
De...
					
					Lees meer
							Omschrijving
                                        Dit heerlijk lichte en keurig onderhouden appartement van circa 89 m² ligt op de bovenste twee verdiepingen van een karakteristiek jaren ’20-pand, gelegen in één van de leukste straten van de populaire Transvaalbuurt. Eeuwig afgekochte erfpacht.  
 
Locatie 
De...
									
									Lees meer
								Kenmerken
- Adres
 - Danie Theronstraat 13 D, 1091 XV Amsterdam
 - Vraagprijs
 - € 675.000 k.k.
 - Woonoppervlakte
 - ca. 89m²
 - Inhoud
 - ca. 224m³
 - Aantal kamers
 - 2
 
Kenmerken
- Vraagprijs
 - € 675.000 k.k.
 - Bijdrage VVE
 - € 120
 - Status
 - Beschikbaar
 - Oplevering
 - In overleg
 - Adres
 - Danie Theronstraat 13 D
 - Postcode
 - 1091 XV
 - Plaats
 - Amsterdam
 
Aanvaarding
Bouw
- Soort appartement
 - Bovenwoning, Appartement
 - Woonlaag
 - 3
 - Soort bouw
 - Bestaande bouw
 - Onderhoud binnen
 - Goed
 - Onderhoud buiten
 - Goed
 
Oppervlakten en inhoud
- Woonoppervlakte
 - ca. 89m²
 - Inhoud
 - ca. 224m³
 
Indeling
- Aantal kamers
 - 2
 - Aantal slaapkamers
 - 1
 - Aantal verdiepingen
 - 2
 
Energie
- Warm water
 - C.V.-ketel
 - Verwarming
 - C.V.-ketel
 - Ketel
 - (2024, Eigendom)
 
Buitenruimte
- Ligging
 - Aan rustige weg, In woonwijk, Vrij uitzicht
 - Schuur
 - Inpandig
 
Omschrijving
Dit heerlijk lichte en keurig onderhouden appartement van circa 89 m² ligt op de bovenste twee verdiepingen van een karakteristiek jaren ’20-pand, gelegen in één van de leukste straten van de populaire Transvaalbuurt. Eeuwig afgekochte erfpacht.Locatie
De woning bevindt zich in de gezellige Transvaalbuurt in Amsterdam-Oost. De straat wordt gekenmerkt door prachtige bomen, groene voortuinen en fraaie Amsterdamse School-architectuur.
In de directe omgeving vind je alles wat je nodig hebt: gezellige cafés en restaurants aan de Amstel, het Beukenplein en De Pijp zijn vlakbij. Voor ontspanning in het groen liggen zowel het Oosterpark als Park Frankendael op slechts vijf minuten fietsen. Winkels en supermarkten zijn op loopafstand te vinden aan de Wibautstraat. Winkelcentrum Oostpoort ligt op enkele minuten fietsen.
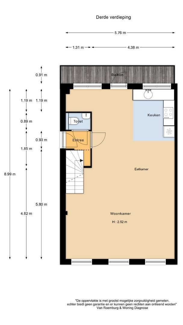
Indeling
Entree op de derde verdieping. Hier bevindt zich de royale, lichte woonkamer met open keuken, mogelijkheid voor een werkplek en toegang tot het balkon met ochtendzon. Via de open trap kom je op de bovenste verdieping, waar nu één ruime slaapkamer is met aangrenzende badkamer voorzien van ligbad (jacuzzi), douche, toilet en dubbele wastafel.
Daarnaast is er een grote berging met ruimte voor kledingkasten en met wasmachineaansluiting. Indien gewenst kan deze verdieping eenvoudig worden omgebouwd tot twee slaapkamers. Vanuit de slaapkamer heb je direct toegang tot het heerlijke dakterras op het zuidwesten - met zon in de middag en avond – een perfecte plek om te ontspannen en te genieten van het uitzicht.
Pand en VvE
Het volledige bouwblok, in de stijl van de Amsterdamse School, is rond 2002 volledig ‘vernieuwbouwd’. Hierbij zijn kleinere woningen samengevoegd tot royale appartementen. De voortuin wordt gezamenlijk beheerd en gebruikt.
De actieve en kleinschalige VvE bestaat uit vijf leden en is in eigen beheer.
Bereikbaarheid
De ligging is ideaal: dichtbij de ring A10 (afrit S112) en met uitstekende openbaarvervoerverbindingen op loopafstand, waaronder metrostation Wibautstraat en station Amsterdam Amstel.
Het centrum van Amsterdam is binnen ongeveer 10 minuten fietsen te bereiken.
Bijzonderheden:
-Eeuwigdurend afgekochte erfpacht
-Energielabel B
-CV ketel uit 2024
-Volgens NEN2580 gemeten
-Balkon met ochtendzon én dakterras met middag- en avondzon
-Gelegen in een karakteristiek jaren ’20-pand
-Kleinschalige, actieve VvE
-Servicekosten € 120 per maand
-Centrale en goed bereikbare locatie in Amsterdam-Oost
-Oplevering in overleg
Foto's
Plattegronden
Locatie
                                                
													[
													{
													"address":    "Danie Theronstraat 13",
													"zipCode":    "1091 XV",
													"city":        "Amsterdam",
													"lat":        52.352389,
													"lng":        4.9159581,
													"heading":    0,
													"pitch":    0
													}
													]
                                                
											
											
											
                                                
													[
													{
													"featureType": "all",
													"elementType": "geometry.fill",
													"stylers": [
													{
													"weight": "2.00"
													}
													]
													},
													{
													"featureType": "all",
													"elementType": "geometry.stroke",
													"stylers": [
													{
													"color": "#9c9c9c"
													}
													]
													},
													{
													"featureType": "all",
													"elementType": "labels.text",
													"stylers": [
													{
													"visibility": "on"
													}
													]
													},
													{
													"featureType": "landscape",
													"elementType": "all",
													"stylers": [
													{
													"color": "#f2f2f2"
													}
													]
													},
													{
													"featureType": "landscape",
													"elementType": "geometry.fill",
													"stylers": [
													{
													"color": "#ffffff"
													}
													]
													},
													{
													"featureType": "landscape.man_made",
													"elementType": "geometry.fill",
													"stylers": [
													{
													"color": "#ffffff"
													}
													]
													},
													{
													"featureType": "poi",
													"elementType": "all",
													"stylers": [
													{
													"visibility": "off"
													}
													]
													},
													{
													"featureType": "road",
													"elementType": "all",
													"stylers": [
													{
													"saturation": -100
													},
													{
													"lightness": 45
													}
													]
													},
													{
													"featureType": "road",
													"elementType": "geometry.fill",
													"stylers": [
													{
													"color": "#eeeeee"
													}
													]
													},
													{
													"featureType": "road",
													"elementType": "labels.text.fill",
													"stylers": [
													{
													"color": "#7b7b7b"
													}
													]
													},
													{
													"featureType": "road",
													"elementType": "labels.text.stroke",
													"stylers": [
													{
													"color": "#ffffff"
													}
													]
													},
													{
													"featureType": "road.highway",
													"elementType": "all",
													"stylers": [
													{
													"visibility": "simplified"
													}
													]
													},
													{
													"featureType": "road.arterial",
													"elementType": "labels.icon",
													"stylers": [
													{
													"visibility": "off"
													}
													]
													},
													{
													"featureType": "transit",
													"elementType": "all",
													"stylers": [
													{
													"visibility": "off"
													}
													]
													},
													{
													"featureType": "water",
													"elementType": "all",
													"stylers": [
													{
													"color": "#46bcec"
													},
													{
													"visibility": "on"
													}
													]
													},
													{
													"featureType": "water",
													"elementType": "geometry.fill",
													"stylers": [
													{
													"color": "#c8d7d4"
													}
													]
													},
													{
													"featureType": "water",
													"elementType": "labels.text.fill",
													"stylers": [
													{
													"color": "#070707"
													}
													]
													},
													{
													"featureType": "water",
													"elementType": "labels.text.stroke",
													"stylers": [
													{
													"color": "#ffffff"
													}
													]
													}
													]
                                                
											
										Meer informatie?
							
		Neem direct contact op met Ilona Oud RM via 0206001600. Mailen kan ook: ilona@ameo.nl
 Voor algemene vragen kunt u ook het contactformulier gebruiken.
Neem contact op