Nieuwe Leliestraat 78, Amsterdam
Vraagprijs € 1.175.000 k.k.
						Geheel charmant pand uit 1722 van ca 152m2, gelegen in hartje Jordaan, om de hoek bij de Bloemgracht, bestaande uit 4 woonlagen, een dakterrasje en een fijne beschutte achtertuin van ca. 20m2 met middag- en avondzon. 
 
Locatie 
Gelegen in het Centrum van Amsterdam...
					
					Lees meer
							Omschrijving
                                        Geheel charmant pand uit 1722 van ca 152m2, gelegen in hartje Jordaan, om de hoek bij de Bloemgracht, bestaande uit 4 woonlagen, een dakterrasje en een fijne beschutte achtertuin van ca. 20m2 met middag- en avondzon. 
 
Locatie 
Gelegen in het Centrum van Amsterdam...
									
									Lees meer
								Kenmerken
- Adres
 - Nieuwe Leliestraat 78, 1015 SV Amsterdam
 - Woonoppervlakte
 - ca. 152m²
 - Perceeloppervlakte
 - ca. 75m²
 - Inhoud
 - ca. 483m³
 - Aantal kamers
 - 8
 - Bouwjaar
 - 1722
 - Energielabel
 - C
 
Kenmerken
- Status
 - Verkocht
 - Oplevering
 - In overleg
 - Adres
 - Nieuwe Leliestraat 78
 - Postcode
 - 1015 SV
 - Plaats
 - Amsterdam
 
Aanvaarding
Bouw
- Soort woonhuis
 - Herenhuis, Tussenwoning
 - Soort bouw
 - Bestaande bouw
 - Bouwjaar
 - 1722
 - Onderhoud binnen
 - Redelijk
 - Onderhoud buiten
 - Redelijk
 - Bijzonderheden
 - Beschermd stads- of dorpgezicht
 
Oppervlakten en inhoud
- Woonoppervlakte
 - ca. 152m²
 - Perceeloppervlakte
 - ca. 75m²
 - Inhoud
 - ca. 483m³
 
Indeling
- Aantal kamers
 - 8
 - Aantal slaapkamers
 - 5
 - Aantal badkamers
 - 1
 - Aantal verdiepingen
 - 4
 
Energie
- Energielabel
 - C
 - Warm water
 - C.V.-ketel
 - Verwarming
 - C.V.-ketel
 - Ketel
 - (2021, Combi-ketel)
 
Buitenruimte
- Ligging
 - Aan rustige weg, In centrum, In woonwijk
 - Tuin
 - Achtertuin
 - Achtertuin
 - Noordwest, 20m², 4×7cm
 - Schuur
 - Inpandig
 
Omschrijving
Geheel charmant pand uit 1722 van ca 152m2, gelegen in hartje Jordaan, om de hoek bij de Bloemgracht, bestaande uit 4 woonlagen, een dakterrasje en een fijne beschutte achtertuin van ca. 20m2 met middag- en avondzon.Locatie
Gelegen in het Centrum van Amsterdam in de gezellige Jordaan, tussen de Bloemgracht en Egelantiersgracht. Een rijke keuze aan winkels en horeca in de buurt, oa de Westerstraat, de Rozengracht. De Biologische markt (op zaterdag) op de Noordermarkt en de weekmarkt op de Lindengracht.
Het is een gezellige buurt waar een drankje wordt gedronken in het café op de hoek of op de stoep met de buren. Kinderen kunnen er op straat spelen, want er is weinig verkeer. Er zijn 4 goede basisscholen, waarvan de Theo Thijssenschool op twee minuten lopen is.
Indeling
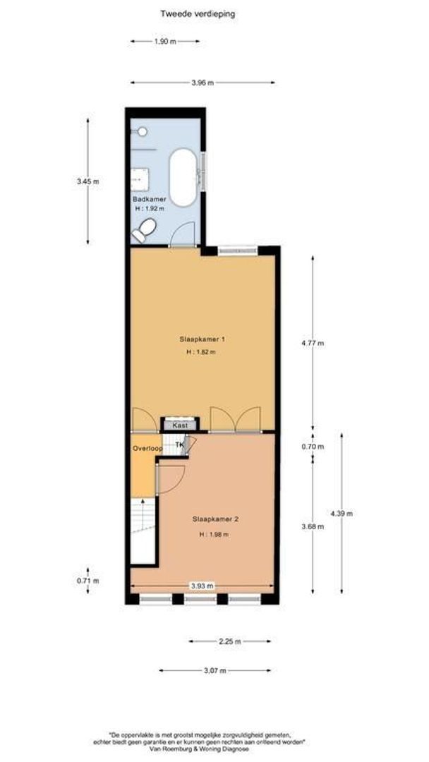
Entree, woonkeuken met bijkeuken in de uitbouw (met wasmachine en toiletruimte), met openslaande deuren naar de beschutte achtertuin. Een open trap leidt naar de eerste verdieping: doorzonwoonkamer met werkkamer in de uitbouw. Trap naar de tweede etage: twee royale slaapkamers en badkamer met ligbad in de uitbouw. De derde etage is de zolderverdieping onder een zadeldak. Hier zijn twee slaapkamers met toegang naar het terrasje op de uitbouw, met uitzicht op de Westertoren.
Bijzonderheden
-volgens NEN 2580 gemeten. Een deel van het pand heeft een plafondhoogte onder de balken die lager is dan 2 meter. Hierdoor is dit ‘overige ruimte’ en officieel geen woonruimte. Deze meters zijn echter wel opgenomen in het totaal bruikbare vloeroppervlak van 152m2.
-vloerverwarming in de keuken (begane grond)
-volle eigendom (geen erfpacht)
-het pand is GEEN monument
-energielabel C
-oplevering in overleg
****
Charming family home built in 1722, appr 152m2, is located in the heart of the Jordaan over 4 floors, including 4 bedrooms, an office, a sunny roof terrace and a lovely private garden of appr 20m2 with both afternoon and evening sun.
Location
The house is located in the center of Amsterdam in the cozy Jordaan neighbourhood, between the Bloemgracht and Egelantiersgracht. A great choice of shops and restaurants are in the area including in the nearby "9 Streets", on the Westerstraat, and on the Rozengracht. The Noordermarkt around the corner has a Saturday organic market and the nearby Lindengracht's markets are on Monday and Saturday. The Jordaan is a delightful neighborhood where you can have a drink at the Nieuwe Lelie café on the corner, or on the sidewalk with the neighbors. Children play in the street, since there is little traffic and there are 4 good primary schools within walking distance, including Theo Thijssen School which is literally two minutes away by foot.
Layout
Ground floor entrance into an open reception area and fully equipped industrial kitchen with almost 3 meter high ceilings. The ground floor is bright, airy, cool in the summer and has marble floors with underfloor heating. An extension that includes a toilet and pantry with room for a washer and dryer is just off the kitchen. French doors open to a sunny and private garden, perfect for eating outside. An open staircase leads to the first floor where there is a spacious, double living room and in the extension is an office with windows on two sides. Stairs to the second floor lead to two spacious bedrooms and a full bathroom, also with underfloor heating. The third floor is the attic under a gable roof with a skylight, currently used by kids to stargaze. The attic has two charming bedrooms with access to the sunny terrace with a view of the Westerkerk.
Specifics
-measured according to NEN 2580 standard. Since the house is more than 300 years old, part of the property has ceiling beams that are less than 2 metres. As a result, this is officially 'other space', even though this includes four good size bedrooms. This space is included in the total usable floor area of 152m2.
-underfloor heating on the ground floor
-full ownership (no leasehold)
-the building is NOT a monument
-energy label C
-delivery in consultation
Foto's
Plattegronden
Locatie
                                                
													[
													{
													"address":    "Nieuwe Leliestraat 78",
													"zipCode":    "1015 SV",
													"city":        "Amsterdam",
													"lat":        52.3754344,
													"lng":        4.8810765,
													"heading":    0,
													"pitch":    0
													}
													]
                                                
											
											
											
                                                
													[
													{
													"featureType": "all",
													"elementType": "geometry.fill",
													"stylers": [
													{
													"weight": "2.00"
													}
													]
													},
													{
													"featureType": "all",
													"elementType": "geometry.stroke",
													"stylers": [
													{
													"color": "#9c9c9c"
													}
													]
													},
													{
													"featureType": "all",
													"elementType": "labels.text",
													"stylers": [
													{
													"visibility": "on"
													}
													]
													},
													{
													"featureType": "landscape",
													"elementType": "all",
													"stylers": [
													{
													"color": "#f2f2f2"
													}
													]
													},
													{
													"featureType": "landscape",
													"elementType": "geometry.fill",
													"stylers": [
													{
													"color": "#ffffff"
													}
													]
													},
													{
													"featureType": "landscape.man_made",
													"elementType": "geometry.fill",
													"stylers": [
													{
													"color": "#ffffff"
													}
													]
													},
													{
													"featureType": "poi",
													"elementType": "all",
													"stylers": [
													{
													"visibility": "off"
													}
													]
													},
													{
													"featureType": "road",
													"elementType": "all",
													"stylers": [
													{
													"saturation": -100
													},
													{
													"lightness": 45
													}
													]
													},
													{
													"featureType": "road",
													"elementType": "geometry.fill",
													"stylers": [
													{
													"color": "#eeeeee"
													}
													]
													},
													{
													"featureType": "road",
													"elementType": "labels.text.fill",
													"stylers": [
													{
													"color": "#7b7b7b"
													}
													]
													},
													{
													"featureType": "road",
													"elementType": "labels.text.stroke",
													"stylers": [
													{
													"color": "#ffffff"
													}
													]
													},
													{
													"featureType": "road.highway",
													"elementType": "all",
													"stylers": [
													{
													"visibility": "simplified"
													}
													]
													},
													{
													"featureType": "road.arterial",
													"elementType": "labels.icon",
													"stylers": [
													{
													"visibility": "off"
													}
													]
													},
													{
													"featureType": "transit",
													"elementType": "all",
													"stylers": [
													{
													"visibility": "off"
													}
													]
													},
													{
													"featureType": "water",
													"elementType": "all",
													"stylers": [
													{
													"color": "#46bcec"
													},
													{
													"visibility": "on"
													}
													]
													},
													{
													"featureType": "water",
													"elementType": "geometry.fill",
													"stylers": [
													{
													"color": "#c8d7d4"
													}
													]
													},
													{
													"featureType": "water",
													"elementType": "labels.text.fill",
													"stylers": [
													{
													"color": "#070707"
													}
													]
													},
													{
													"featureType": "water",
													"elementType": "labels.text.stroke",
													"stylers": [
													{
													"color": "#ffffff"
													}
													]
													}
													]
                                                
											
										Meer informatie?
							
		Neem direct contact op met Ilona Oud RM via 0206001600. Mailen kan ook: ilona@ameo.nl
 Voor algemene vragen kunt u ook het contactformulier gebruiken.
Neem contact op