Legmeerstraat 70 2, Amsterdam
Prijs € 1.295.000 k.k.
Karakter, ruimte, licht en een toplocatie: dit bijzondere split-level appartement in Amsterdam-Zuid biedt het allemaal.
In een rustige straat, praktisch aan het Hoofddorpplein en op een paar minuten van het Vondelpark, staat dit royale en volledig gerenoveerde...
Lees meer
Omschrijving
Karakter, ruimte, licht en een toplocatie: dit bijzondere split-level appartement in Amsterdam-Zuid biedt het allemaal.
In een rustige straat, praktisch aan het Hoofddorpplein en op een paar minuten van het Vondelpark, staat dit royale en volledig gerenoveerde...
Lees meer
Kenmerken
- Adres
- Legmeerstraat 70 2, 1058 NH Amsterdam
- Prijs
- € 1.295.000 k.k.
- Woonoppervlakte
- ca. 138m²
- Inhoud
- ca. 464m³
- Aantal kamers
- 6
- Bouwjaar
- 1931
- Energielabel
- A
Kenmerken
- Prijs
- € 1.295.000 k.k.
- Bijdrage VVE
- € 182
- Status
- Beschikbaar
- Oplevering
- In overleg
- Adres
- Legmeerstraat 70 2
- Postcode
- 1058 NH
- Plaats
- Amsterdam
Aanvaarding
Bouw
- Soort appartement
- Bovenwoning, Dubbel bovenhuis
- Soort bouw
- Bestaande bouw
- Bouwjaar
- 1931
- Onderhoud binnen
- Uitstekend
- Onderhoud buiten
- Uitstekend
Oppervlakten en inhoud
- Woonoppervlakte
- ca. 138m²
- Inhoud
- ca. 464m³
Indeling
- Aantal kamers
- 6
- Aantal slaapkamers
- 3
- Aantal badkamers
- 2
- Aantal verdiepingen
- 3
- Voorzieningen
- Mechanische ventilatie, Airconditioning, Rookkanaal, Schuifpui, Dakraam
Energie
- Energielabel
- A
Buitenruimte
- Ligging
- Aan rustige weg, In woonwijk
- Schuur
- Inpandig
- Faciliteiten schuur
- Voorzien van elektra
Omschrijving
Karakter, ruimte, licht en een toplocatie: dit bijzondere split-level appartement in Amsterdam-Zuid biedt het allemaal.In een rustige straat, praktisch aan het Hoofddorpplein en op een paar minuten van het Vondelpark, staat dit royale en volledig gerenoveerde bovenhuis van ca. 138 m². De woning strekt zich uit over maar liefst drie woonlagen met een aparte entree, en is in 2020 volledig gerenoveerd. Met thans drie slaapkamers, een knusse woonkamer, moderne voorzieningen en een geweldige woon- en leefkeuken met aangrenzend dakterras op het zuidwesten, biedt dit huis alle ruimte voor een gezin of eenieder die comfortabel en stijlvol in Amsterdam wil wonen.
Indeling
Eerste verdieping
Entree naar de woning met een mooi bordes, garderobe en trap naar de tweede verdieping.
Tweede verdieping
Aan de voorzijde van de woning tref je de eerste slaapkamer aan met mooie details zoals een erker en een ensuite badkamer, compleet met toilet. Vanuit het stijlvolle trappenhuis met wederom een stijlvol bordes is een interne berging toegankelijk. Hier is de aansluiting voor de wasmachine geplaatst.
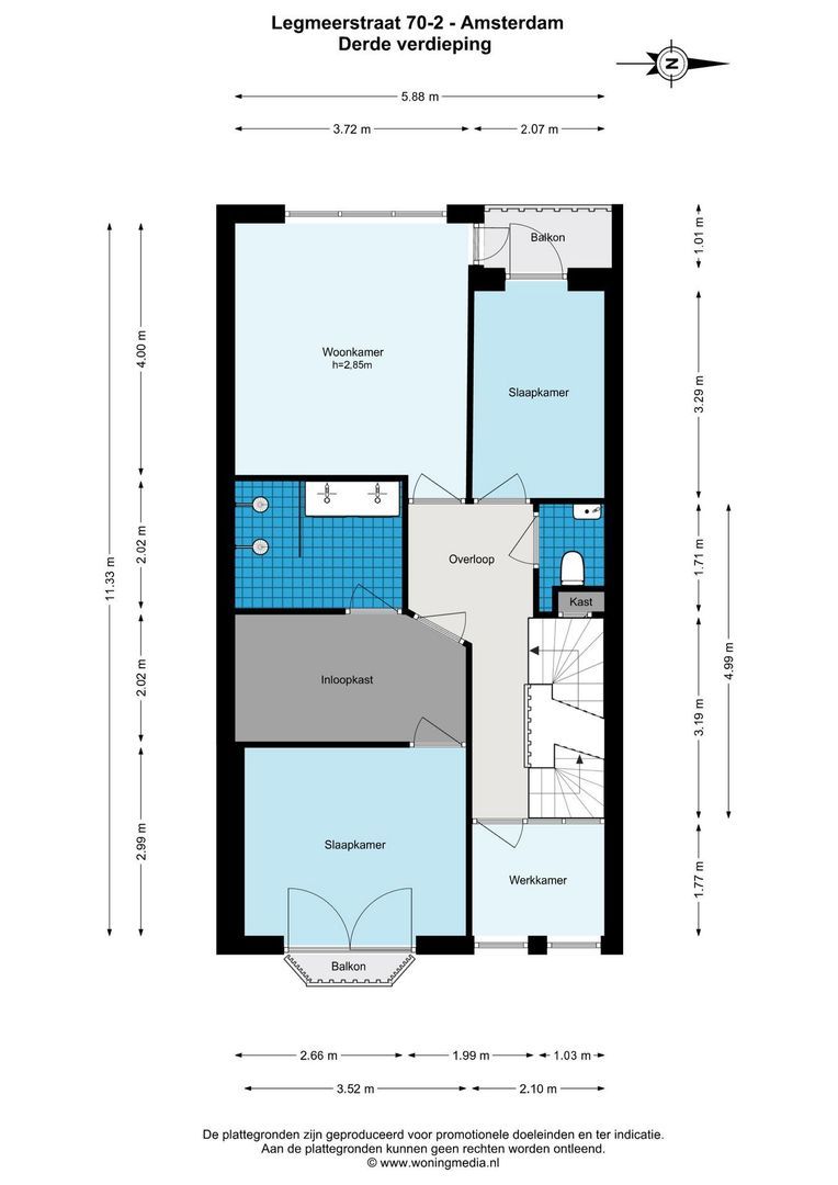
Derde verdieping
Op deze verdieping bevinden zich drie volwaardige (slaap)kamers, ruime inloopkast en een luxe badkamer, waardoor dit een complete en multifunctionele woonlaag is. Er zijn twee gelijkwaardige kamers aan de voor- en achterzijde. De kamer aan de voorzijde is een slaapkamer met een balkon. De kamer aan de achterzijde is nu de woonkamer met eveneens aangrenzend balkon. De kamers zijn ruim bemeten en praktisch ingedeeld. Aan de voorzijde is in het verlengde van de trapopgang een prachtige, transparante en rustige werkruimte gerealiseerd. Aan de achterzijde, grenzend aan een balkon, is de 3e uitstekende (slaap)kamer. Deze verdieping heeft tussen de grote kamers een chique inloopkast en een moderne, strakke badkamer met twee douchekoppen en tweepersoons wastafelmeubel. Tot slot vind je op deze verdieping een separaat toilet.
Vierde verdieping
Deze verdieping is met recht de spreekwoordelijke 'kers op de taart'. De kap is in 2020 opengebroken en uitgebouwd met een royale schuifpui over de gehele breedte naar het dakterras richting zuidwest! In de nok van de kap is een grote gemotoriseerde lichtstraat aangebracht en aan de voorzijde zijn extra dakramen geplaatst waardoor de voormalige zolderverdieping een loftachtige look & feel krijgt. De hele verdieping is daarmee spectaculair licht. Er is hier een uiterst luxe en complete keuken gerealiseerd. Uitgerust met een brede inductiekookplaat met geïntegreerde Bora Professional 2.0 afzuigsysteem, een wijnklimaatkast, Quooker 4-in-1 (koud, warm, bruisend en kokend water), twee ovens, combimagnetron en uiteraard een grote koelkast en vriezer. De keuken is voorzien van high-end Siemens Smart-apparatuur. De Velux-lichtstraat met ingebouwde zonnewering en actieve klimaatsensoren is app-gestuurd en zorgt voor een optimale licht- en luchtkwaliteit. Daarnaast is er volop ruimte voor een royale eettafel (10 persoons) en een gezellige zithoek bij de houtkachel. Deze ruimte loopt naadloos over in het geweldige (dak)terras op van circa 25m².
De gehele woning is perfect afgewerkt met oog voor detail en uitgerust met tal van moderne voorzieningen. Denk aan inbouwverlichting met dimmers, warme kleurstellingen, (nagenoeg) overal vloerverwarming, airco in de woonkeuken en slaapkamer, een PVC-vloer, geïntegreerd SONOS-muzieksysteem (ter overname), HR++ glas, intercomsysteem en sfeervolle houtkachel. Daarnaast is er mechanische ventilatie, glasvezelinternet, rook- en CO2-melders op iedere verdieping en een waterdrukverhoger is aanwezig. Hoewel er nog geen zonnepanelen zijn geplaatst, is de voorbereiding hiervoor getroffen en is er toestemming vanuit de VvE.
Omgeving
De Legmeerstraat bevindt zich in de gewilde Hoofddorppleinbuurt in Amsterdam-Zuid, een rustige straat met alle stedelijke voorzieningen binnen handbereik. De locatie is ideaal: vlakbij het Hoofddorpplein, tussen het Vondelpark en Rembrandtpark, en op loopafstand van de Nieuwe Meer. Op loopafstand vind je een ruime keuze aan supermarkten, cafés, restaurants en alle denkbare winkels. Met de fiets ben je binnen tien minuten in het centrum, terwijl de Ring A10 en Schiphol uitstekend bereikbaar zijn. Voor gezinnen is er bovendien een speeltuin in het begin van de straat.
Voorzieningen in de buurt
- Kinderopvang <1 minuut (5 locaties binnen 5 minuten) loopafstand
- Ring A10 <3 minuten met de auto
- Supermarkten <5 minuten (o.a. 2x Albert Heijn, Dirk van den Broek, Ekoplaza) loopafstand
- Basisschool <10 minuten loopafstand
Bijzonderheden
- Woonoppervlakte ca. 138 m²;
- Drie woonlagen met praktische indeling;
- Drie slaapkamers, extra kamer en zonnig dakterras van ca. 25 m²;
- Energielabel A;
- Actieve en gezonde VvE, maandelijkse bijdrage € 181,71;
- Erfpachtcanon afgekocht tot 31 maart 2063, daarna breekt er een eeuwigdurend tijdvak aan waarbij de canon is vastgeklikt op € 1.899,02. Deze jaarcanon wordt jaarlijks geïndexeerd;
- Gelegen in rustige en geliefde woonomgeving nabij het Vondelpark.
Dit is echt een uniek en ruim (familie)huis op een toplocatie in Amsterdam-Zuid. Plan snel een bezichtiging en ervaar zelf de ruimte, het licht en het comfort!
Foto's
Plattegronden
Documenten
Locatie
[
{
"address": "Legmeerstraat 70",
"zipCode": "1058 NH",
"city": "Amsterdam",
"lat": 52.3517343,
"lng": 4.8513496,
"heading": 0,
"pitch": 0
}
]
[
{
"featureType": "all",
"elementType": "geometry.fill",
"stylers": [
{
"weight": "2.00"
}
]
},
{
"featureType": "all",
"elementType": "geometry.stroke",
"stylers": [
{
"color": "#9c9c9c"
}
]
},
{
"featureType": "all",
"elementType": "labels.text",
"stylers": [
{
"visibility": "on"
}
]
},
{
"featureType": "landscape",
"elementType": "all",
"stylers": [
{
"color": "#f2f2f2"
}
]
},
{
"featureType": "landscape",
"elementType": "geometry.fill",
"stylers": [
{
"color": "#ffffff"
}
]
},
{
"featureType": "landscape.man_made",
"elementType": "geometry.fill",
"stylers": [
{
"color": "#ffffff"
}
]
},
{
"featureType": "poi",
"elementType": "all",
"stylers": [
{
"visibility": "off"
}
]
},
{
"featureType": "road",
"elementType": "all",
"stylers": [
{
"saturation": -100
},
{
"lightness": 45
}
]
},
{
"featureType": "road",
"elementType": "geometry.fill",
"stylers": [
{
"color": "#eeeeee"
}
]
},
{
"featureType": "road",
"elementType": "labels.text.fill",
"stylers": [
{
"color": "#7b7b7b"
}
]
},
{
"featureType": "road",
"elementType": "labels.text.stroke",
"stylers": [
{
"color": "#ffffff"
}
]
},
{
"featureType": "road.highway",
"elementType": "all",
"stylers": [
{
"visibility": "simplified"
}
]
},
{
"featureType": "road.arterial",
"elementType": "labels.icon",
"stylers": [
{
"visibility": "off"
}
]
},
{
"featureType": "transit",
"elementType": "all",
"stylers": [
{
"visibility": "off"
}
]
},
{
"featureType": "water",
"elementType": "all",
"stylers": [
{
"color": "#46bcec"
},
{
"visibility": "on"
}
]
},
{
"featureType": "water",
"elementType": "geometry.fill",
"stylers": [
{
"color": "#c8d7d4"
}
]
},
{
"featureType": "water",
"elementType": "labels.text.fill",
"stylers": [
{
"color": "#070707"
}
]
},
{
"featureType": "water",
"elementType": "labels.text.stroke",
"stylers": [
{
"color": "#ffffff"
}
]
}
]
Meer informatie?

Neem direct contact op met Leen Cornelisse RM RT LRGD via 0206001600. Mailen kan ook: leen@ameo.nl
Voor algemene vragen kunt u ook het contactformulier gebruiken.
Neem contact op