Beysterveld 161, Amsterdam
Vraagprijs € 775.000 k.k.
Royaal parterre-appartement met zonnig gelegen tuin, gelegen in het geliefde Buitenveldert.
De woning betreft een royaal 2/3 kamerappartement van circa 107m², gelegen op de begane grond van het chique complex 'Amstel Circle'.
Het half cirkelvormig gebouwde...
Lees meer
Omschrijving
Royaal parterre-appartement met zonnig gelegen tuin, gelegen in het geliefde Buitenveldert.
De woning betreft een royaal 2/3 kamerappartement van circa 107m², gelegen op de begane grond van het chique complex 'Amstel Circle'.
Het half cirkelvormig gebouwde...
Lees meer
Kenmerken
- Adres
- Beysterveld 161, 1083 KC Amsterdam
- Woonoppervlakte
- ca. 107m²
- Inhoud
- ca. 341m³
- Aantal kamers
- 2
- Bouwjaar
- 1987
- Energielabel
- A
Kenmerken
- Bijdrage VVE
- € 264
- Status
- Verkocht
- Oplevering
- In overleg
- Adres
- Beysterveld 161
- Postcode
- 1083 KC
- Plaats
- Amsterdam
Aanvaarding
Bouw
- Soort appartement
- Benedenwoning, Appartement
- Woonlaag
- 1
- Soort bouw
- Bestaande bouw
- Bouwjaar
- 1987
- Onderhoud binnen
- Goed
- Onderhoud buiten
- Goed
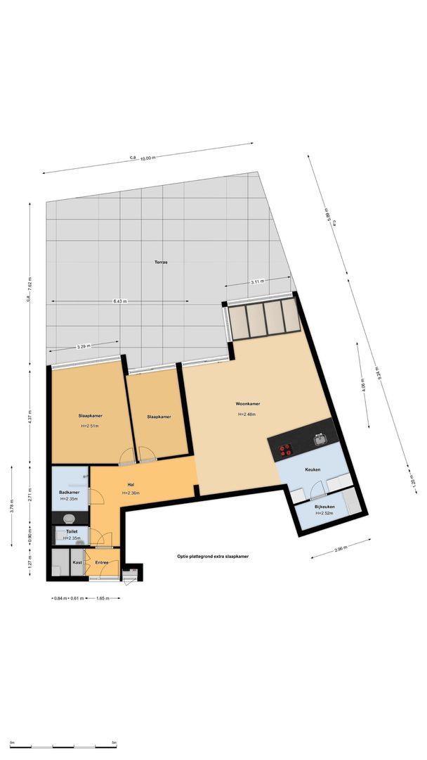
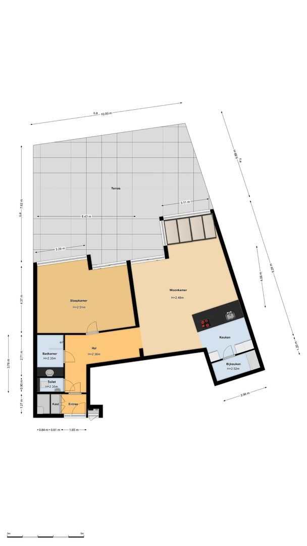
Oppervlakten en inhoud
- Woonoppervlakte
- ca. 107m²
- Inhoud
- ca. 341m³
Indeling
- Aantal kamers
- 2
- Aantal slaapkamers
- 1
- Aantal badkamers
- 1
- Aantal verdiepingen
- 1
- Voorzieningen
- Mechanische ventilatie, Alarminstallatie, TV-Kabel, Buitenzonwering, Lift, Schuifpui, Balansventilatie
Energie
- Energielabel
- A
- Isolatie
- Volledig geisoleerd
- Warm water
- C.V.-ketel
- Verwarming
- C.V.-ketel
- Ketel
- HR (2013, Combi-ketel, Eigendom)
Buitenruimte
- Ligging
- Aan rustige weg, In woonwijk, Beschutte ligging
- Tuin
- Achtertuin
- Achtertuin
- Zuid, 80m², 1000×800cm
- Schuur
- Box
- Faciliteiten schuur
- Voorzien van elektra
Omschrijving
Royaal parterre-appartement met zonnig gelegen tuin, gelegen in het geliefde Buitenveldert.De woning betreft een royaal 2/3 kamerappartement van circa 107m², gelegen op de begane grond van het chique complex 'Amstel Circle'.
Het half cirkelvormig gebouwde complex onderscheidt zich van veel bebouwing in de omgeving door haar eigenzinnige architectuur en grote tot zeer grote woningen.
Dit appartement is een van de weinige appartementen in Buitenveldert met een royale privé-tuin.
Ideaal voor mensen die geen trappen willen lopen, maar wel de luxe en het comfort van een eigen tuin willen hebben. Een unieke kans dus!
De indeling is als volgt:
Na binnenkomst in de onlangs geheel gerenoveerde centrale hal van het complex geeft de voordeur van de woning toegang tot de entree/hal.
In deze entree bevinden zich de garderobekast en de ruimte waar zich de CV-ketel en de mechanische ventilatie-unit bevinden.
Deze ventilatie betreft een energiebesparende warmte-terugwininstallatie (‘WTW’).
Vervolgens kom je in de L-vormige gang welke toegang geeft tot alle ruimtes van de woning.
Aan de linkerzijde allereerst de toiletruimte en de badkamer.
Het toilet is geheel fris wit getegeld en voorzien van een wandcloset en fonteintje.
De badkamer is voorzien van een inloopdouche met glazen wand en thermostatische kraan.
Verder een royaal wastafelmeubel met veel bergruimte en keramische waskom. Het geheel wordt gecompleteerd door een grote spiegel met verlichting en een handdoekradiator.
Vervolgens de grote slaapkamer welke vroeger uit 2 kamers bestond (en welke eenvoudig weer is terug te brengen; zie ook alternatieve plattegrond).
Hier is plaats voor een royaal 2-persoonsbed en grote inloop- c.q. linnenkast.
Last but not least kom je in de royale woonkamer met open keuken en serre.
Zowel de slaapkamer als de woonkamer geven middels een schuifpui toegang tot de tuin.
Deze is circa 80m² groot(!), biedt veel privacy en is geheel omheind met schuttingen en hagen. Het vrij los laten lopen van een huisdier is hier geen probleem; ze kunnen niet weglopen!
De woonkamer is richting de tuin vergroot met een gezellige serre. Dit biedt veel licht en haalt ‘buiten’ gevoelsmatig naar binnen; heerlijk!
De open keuken bevindt zich aan de achterzijde van de woonkamer. De keuken is uitgevoerd in crème kleurstelling en heeft een kookeiland voorzien van een fraai marmeren aanrechtblad.
Vanzelfsprekend is de volgende apparatuur aanwezig: koel/vriescombinatie, inductie kookplaat, afzuigkap, Quooker, combi-magnetronoven en vaatwasmachine.
Aangrenzend bevindt zich een bijkeuken met opstelplaats voor de wasmachine en -droger. Daarnaast nog een zee aan opbergruimte.
Over bergruimte gesproken; de woning heeft een eigen box in de onderbouw. Deze heeft een oppervlakte van circa 3,5m² en ideaal voor het veilig opbergen van je fiets en spullen die je niet dagelijks gebruikt.
Het gebouw Amstel Circle is sinds de bouw een ‘landmark’ in Buitenveldert.
Het is een gebouw met een chique uitstraling wat al vanaf dag 1 een naam hoog te houden heeft.
De entrees en liften zijn onlangs geheel gerenoveerd en zorgen er voor dat het gebouw weer jaren mee kan, vooral als het gaat om uitstraling en comfort.
Mooie bijvangst van deze renovatie is het gegeven dat de entree van de woning in de centrale hal is gelegen, waardoor deze hal een luxe entree naar de woning biedt en het gevoel geeft dat dit al bij het privégedeelte behoort.
Ook de ligging in de wijk is perfect en naast de belangrijke aanvoerroutes Europaboulevard, Beneluxbaan en Van Nijenrodeweg wordt het complex aan weerszijden begrenst door het Gijsbrecht van Amstelpark en het Amstelpark. Ook het Amsterdamse Bos is op korte (loop-)afstand bereikbaar.
Het luxe winkelcentrum Groot Gelderlandplein en de kantoren van de Zuid As bevinden zich op loop- c.q. fietsafstand.
De ringweg A-10 is binnen enkele minuten bereikbaar, dus Schiphol ligt op een kwartiertje. Maar ook de tram en busverbindingen zijn vanuit dit deel van Buitenveldert uitstekend.
Parkeren op straat kan hier middels een bewonersvergunning (2 verkrijgbaar per woning), maar er zijn met enige regelmaat ook parkeerplaatsen in de parkeergarage (onderin het complex) te koop.
Eigendomssituatie:
Het appartement is gelegen op erfpachtgrond, eigendom van de Gemeente Amsterdam.
De Algemene Bepalingen voor eeuwigdurende erfpacht 2016 zijn van toepassing. Er is overgestapt onder gunstige condities.
De canon is afgekocht tot en met 31 juli 2036, daarna bedraagt de canon € 1.017,90 (exclusief indexatie).
VvE Amstel-Circle:
- Gezonde en actieve VVE met een eigen, inwonende huismeester;
- Maandelijkse servicekosten bedragen € 264,--;
- Professioneel beheerd door VvE Beheer Amsterdam;
- Huishoudelijk Reglement aanwezig.
Goed om te weten:
- Woonoppervlakte ca. 107m²;
- Bouwjaar 1988;
- Woning is geheel voorzien van een visgraat parketvloer;
- De gang en badkamer zijn voorzien van ingebouwde plafondspots;
- Beveiligde entree met videofone (ook via smartphone te bedienen) en camera;
- Alarmsysteem;
- Ramen en serredak voorzien van zonwerende screens, aangevuld met een zonnescherm (alles elektrisch bedienbaar);
- Alle wanden en plafonds zijn voorzien van glad stucwerk;
- Tuin biedt ruimte voor zowel een grote eettafelopstelling als een loungeset en daarnaast voldoende plekken voor planten- en/of grasstroken;
- Verwarming en warm water door middel CV (Remeha Tzerra, 2013) en WTW (recent onderhouden);
- Spouwmuurisolatie en dubbel glas;
- Energielabel A, geldig tot 10 maart 2035.
Oplevering in overleg.
Foto's
Plattegronden
Locatie
[
{
"address": "Beysterveld 161",
"zipCode": "1083 KC",
"city": "Amsterdam",
"lat": 52.3281272,
"lng": 4.8883588,
"heading": 0,
"pitch": 0
}
]
[
{
"featureType": "all",
"elementType": "geometry.fill",
"stylers": [
{
"weight": "2.00"
}
]
},
{
"featureType": "all",
"elementType": "geometry.stroke",
"stylers": [
{
"color": "#9c9c9c"
}
]
},
{
"featureType": "all",
"elementType": "labels.text",
"stylers": [
{
"visibility": "on"
}
]
},
{
"featureType": "landscape",
"elementType": "all",
"stylers": [
{
"color": "#f2f2f2"
}
]
},
{
"featureType": "landscape",
"elementType": "geometry.fill",
"stylers": [
{
"color": "#ffffff"
}
]
},
{
"featureType": "landscape.man_made",
"elementType": "geometry.fill",
"stylers": [
{
"color": "#ffffff"
}
]
},
{
"featureType": "poi",
"elementType": "all",
"stylers": [
{
"visibility": "off"
}
]
},
{
"featureType": "road",
"elementType": "all",
"stylers": [
{
"saturation": -100
},
{
"lightness": 45
}
]
},
{
"featureType": "road",
"elementType": "geometry.fill",
"stylers": [
{
"color": "#eeeeee"
}
]
},
{
"featureType": "road",
"elementType": "labels.text.fill",
"stylers": [
{
"color": "#7b7b7b"
}
]
},
{
"featureType": "road",
"elementType": "labels.text.stroke",
"stylers": [
{
"color": "#ffffff"
}
]
},
{
"featureType": "road.highway",
"elementType": "all",
"stylers": [
{
"visibility": "simplified"
}
]
},
{
"featureType": "road.arterial",
"elementType": "labels.icon",
"stylers": [
{
"visibility": "off"
}
]
},
{
"featureType": "transit",
"elementType": "all",
"stylers": [
{
"visibility": "off"
}
]
},
{
"featureType": "water",
"elementType": "all",
"stylers": [
{
"color": "#46bcec"
},
{
"visibility": "on"
}
]
},
{
"featureType": "water",
"elementType": "geometry.fill",
"stylers": [
{
"color": "#c8d7d4"
}
]
},
{
"featureType": "water",
"elementType": "labels.text.fill",
"stylers": [
{
"color": "#070707"
}
]
},
{
"featureType": "water",
"elementType": "labels.text.stroke",
"stylers": [
{
"color": "#ffffff"
}
]
}
]
Meer informatie?

Neem direct contact op met Mark van Berkum RM RT via 0206001600. Mailen kan ook: mark@ameo.nl
Voor algemene vragen kunt u ook het contactformulier gebruiken.
Neem contact op