Van Hogendorpstraat 153 3, Amsterdam

Vraagprijs € 875.000 k.k.

  Kan ik deze woning betalen?

Dubbel bovenhuis van circa 94 m² op eigen grond, met heerlijk ruim dakterras van circa 31 m². Sfeervol en karakteristiek dubbel bovenhuis van ca. 94 m² met een royaal dakterras, gelegen op eigen grond in het mooiste stukje van de Van Hogendorpstraat, midden in de...
Lees meer

Beeldmateriaal

Van Hogendorpstraat 153 3, Amsterdam

Van Hogendorpstraat 153 3, Amsterdam
Van Hogendorpstraat 153 3, Amsterdam Van Hogendorpstraat 153 3, Amsterdam Van Hogendorpstraat 153 3, Amsterdam Van Hogendorpstraat 153 3, Amsterdam

Omschrijving

Dubbel bovenhuis van circa 94 m² op eigen grond, met heerlijk ruim dakterras van circa 31 m². Sfeervol en karakteristiek dubbel bovenhuis van ca. 94 m² met een royaal dakterras, gelegen op eigen grond in het mooiste stukje van de Van Hogendorpstraat, midden in de...
Lees meer

Kenmerken

Adres
Van Hogendorpstraat 153 3, 1051 BN Amsterdam
Vraagprijs
€ 875.000 k.k.
Woonoppervlakte
ca. 94m²
Inhoud
ca. 338m³
Aantal kamers
3
Bouwjaar
1903
Energielabel
C
Alle kenmerken

Kenmerken

Aanvaarding

Vraagprijs
€ 875.000 k.k.
Bijdrage VVE
€ 139
Status
Verkocht onder voorbehoud
Oplevering
In overleg
Adres
Van Hogendorpstraat 153 3
Postcode
1051 BN
Plaats
Amsterdam

Bouw

Soort appartement
Bovenwoning, Dubbel bovenhuis
Woonlaag
4
Soort bouw
Bestaande bouw
Bouwjaar
1903
Onderhoud binnen
Goed
Onderhoud buiten
Goed

Oppervlakten en inhoud

Woonoppervlakte
ca. 94m²
Inhoud
ca. 338m³

Indeling

Aantal kamers
3
Aantal slaapkamers
2
Aantal badkamers
1
Aantal verdiepingen
2
Voorzieningen
TV-Kabel, Glasvezel kabel, Zonnepanelen

Energie

Energielabel
C
Isolatie
Dakisolatie, Muurisolatie, Vloerisolatie, Dubbel glas
Warm water
C.V.-ketel
Verwarming
C.V.-ketel
Ketel
HR (Combi-ketel, Eigendom)

Buitenruimte

Ligging
Aan rustige weg, In woonwijk, Vrij uitzicht
Balkon
Ja

Omschrijving

Dubbel bovenhuis van circa 94 m² op eigen grond, met heerlijk ruim dakterras van circa 31 m².

Sfeervol en karakteristiek dubbel bovenhuis van ca. 94 m² met een royaal dakterras, gelegen op eigen grond in het mooiste stukje van de Van Hogendorpstraat, midden in de geliefde Staatsliedenbuurt. Deze charmante woning onderscheidt zich door de prachtige woonverdieping met hoge plafonds, grote raampartijen en authentieke details, gecombineerd met een heerlijk dakterras waar je in alle rust en privacy van de zon kunt genieten.

Indeling:
Eigen entree op de tweede verdieping.

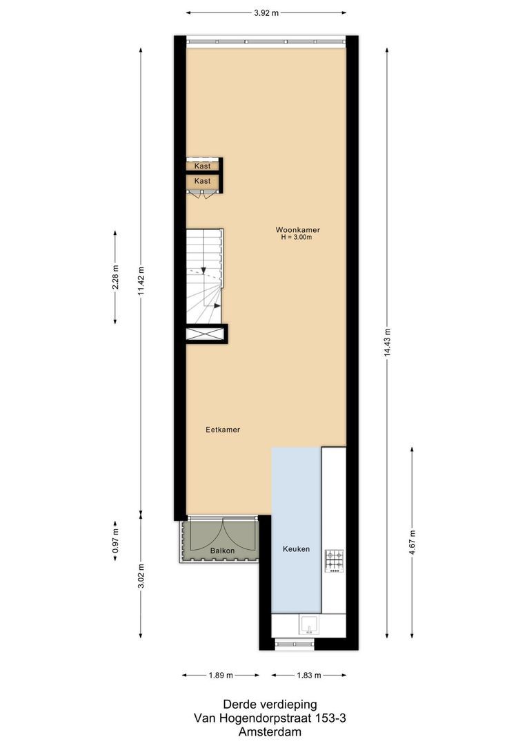
Via de trap bereik je de woonverdieping. Hier kom je binnen in de hal die toegang geeft tot de royale woonkamer aan de voorzijde. De woonkamer kenmerkt zich door de hoge plafonds, de hardhouten merbau-parketvloer, grote raampartijen en een prettige lichtinval, wat zorgt voor een ruimtelijk en sfeervol geheel. Aan de achterzijde bevindt zich de open keuken met voldoende ruimte voor een eethoek. Vanuit de keuken is er toegang tot het balkon aan de achterzijde, een fijne plek voor een kop koffie in de ochtend. Op deze verdieping bevindt zich tevens een praktische bergruimte.

Via de interne trap bereik je de bovenste verdieping. Deze verdieping beschikt over de slaapvertrekken, de badkamer en een separaat toilet. De ruime hoofdslaapkamer (eenvoudig te splitsen in 2 slaapkamers, zodat er een totaal van 3 slaapkamers ontstaat) ligt aan de achterzijde met doorloop naar terras op het zuiden en biedt een rustige ligging. Aan de voorzijde bevindt zich een tweede goed bemeten slaapkamer, die tevens uitstekend kan dienen als werk- of kinderkamer. De badkamer is centraal gelegen en voorzien van een ligbad, douche, wastafel. Verder is er een aparte kast met hier de Cv-installatie en een aansluiting voor de wasmachine. Vanaf de overloop is het dakterras te bereiken.

Dakterras:
Het dakterras is zonder twijfel één van de absolute hoogtepunten van deze woning. Hier geniet je van veel zon, rust en privacy, een zeldzame combinatie midden in de stad. Of je nu ’s ochtends rustig de dag begint met een kop koffie, in de middag van de zon wilt genieten of ’s avonds lang wilt tafelen met vrienden, dit is de plek waar het allemaal samenkomt. Het dakterras biedt voldoende ruimte voor een comfortabele loungehoek, day-bed en veel groen, en vormt een volwaardige verlenging van de woonruimte. Het dakterras is voorzien van water en elektra.

Omgeving:
De Van Hogendorpstraat is één van de mooiste en meest gewilde straten van de Staatsliedenbuurt in Amsterdam West. Een rustige, brede straat met karakteristieke panden en een prettige, bijna dorpse sfeer. Op steenworp afstand ligt het Westerpark, een geliefde plek voor ontspanning, sport, horeca en culturele activiteiten. Ook de Jordaan en het centrum van Amsterdam zijn binnen enkele minuten fietsen bereikbaar. In de directe omgeving vind je een breed aanbod aan gezellige cafés, restaurants, koffietentjes en winkels.

Bereikbaarheid:
De bereikbaarheid is uitstekend. Met de fiets ben je binnen enkele minuten in het centrum van Amsterdam. Openbaar vervoer (bus en tram) is op loopafstand en biedt snelle verbindingen naar onder andere Amsterdam Centraal en Station Sloterdijk. Met de auto ben je via de S100 en S103 snel op de ring A10.

Bijzonderheden:
- Prachtige woonverdieping met hoge plafonds en grote raampartijen
- Zeer lichte woning met een sfeervolle uitstraling en ruimtelijk en karakteristiek gevoel;
- Gelegen aan een rustige en groene straat, op het mooiste deel van de Van Hogendorpstraat;
- Direct nabij het Westerpark en op korte afstand van de Jordaan en het centrum;
- Gebruiksoppervlakte wonen ca. 94 m² (meetrapport aanwezig);
- Gelegen op EIGEN GROND (dus géén erfpacht);
- Dubbele bovenwoning verdeeld over de derde en vierde verdieping;
- Royaal en zonnig dakterras met veel privacy en vrij uitzicht;
- Daarnaast beschikt de woning over een balkon én terras (totaal ca. 34 m² buitenruimte);
- Woning is voorzien van 3 zonnepanelen;
- Kleine en actieve Vereniging van Eigenaars, voorzijde van het pand recent geschilderd;
- Servicekosten bedragen € 139,- per maand;
- Oplevering in overleg.

Interesse?
Maak snel een afspraak voor een bezichtiging en ervaar zelf het dakterras, de sfeer en de ruimte van deze woning. Direct online een bezichtiging inplannen? Ga naar de woning op onze website en klik rechtsonder op “plan afspraak”. Wij laten je deze woning graag zien!

**English**
A double-height top-floor apartment of approximately 94 m² on freehold land, with a lovely, spacious rooftop terrace of approximately 31 m².

A charming and distinctive double-height top-floor apartment of approximately 94 m² with a spacious rooftop terrace, situated on freehold land in the most beautiful section of Van Hogendorpstraat, right in the heart of the beloved Staatsliedenbuurt neighborhood. This charming home stands out for its beautiful living area with high ceilings, large windows, and authentic details, combined with a lovely rooftop terrace where you can enjoy the sun in complete peace and privacy.

Layout:
Private entrance on the second floor.

The staircase leads to the living area. Here, you enter the foyer, which opens onto the spacious living room at the front. The living room features high ceilings, hardwood merbau parquet flooring, large windows, and plenty of natural light, creating a spacious and inviting atmosphere. At the rear is the open kitchen with ample space for a dining area. From the kitchen, there is access to the rear balcony, a lovely spot for a morning cup of coffee. This floor also features a practical storage room.

The internal staircase leads to the top floor. This floor features the bedrooms, the bathroom, and a separate toilet. The spacious master bedroom (which can easily be divided into two bedrooms, creating a total of three bedrooms) is located at the rear with access to a south-facing terrace and offers a quiet setting. At the front is a second, generously sized bedroom, which would also serve perfectly as a home office or children’s room. The bathroom is centrally located and equipped with a bathtub, shower, and sink. There is also a separate closet housing the central heating system and a connection for the washing machine. The rooftop terrace is accessible from the landing.

Roof Terrace:
The roof terrace is undoubtedly one of the absolute highlights of this home. Here you can enjoy plenty of sun, peace, and privacy—a rare combination right in the heart of the city. Whether you want to start your day quietly with a cup of coffee in the morning, soak up the sun in the afternoon, or enjoy a long dinner with friends in the evening, this is the place where it all comes together. The rooftop terrace offers plenty of space for a comfortable lounge area, a daybed, and plenty of greenery, serving as a full-fledged extension of the living space. The rooftop terrace is equipped with water and electricity.

Surroundings:
Van Hogendorpstraat is one of the most beautiful and sought-after streets in the Staatsliedenbuurt neighborhood of Amsterdam West. A quiet, wide street with characteristic buildings and a pleasant, almost village-like atmosphere. Just a stone’s throw away is Westerpark, a beloved spot for relaxation, sports, dining, and cultural activities. The Jordaan and the center of Amsterdam are also just a few minutes’ bike ride away. In the immediate vicinity, you’ll find a wide range of cozy cafés, restaurants, coffee shops, and stores.

Accessibility:
Accessibility is excellent. By bike, you can reach the center of Amsterdam in just a few minutes. Public transportation (bus and tram) is within walking distance and offers quick connections to Amsterdam Central Station and Sloterdijk Station, among others. By car, you can quickly reach the A10 ring road via the S100 and S103.

Special features:
- Beautiful living floor with high ceilings and large windows
- Very bright home with a charming atmosphere and a spacious, distinctive feel;
- Located on a quiet and green street, in the most beautiful part of Van Hogendorpstraat;
- Right near Westerpark and a short distance from the Jordaan and the city center;
- Living area approx. 94 m² (survey report available);
- Located on FREEHOLD LAND (i.e., no ground lease);
- Two-story apartment spanning the third and fourth floors;
- Spacious and sunny rooftop terrace with plenty of privacy and unobstructed views;
- Additionally, the apartment features a balcony and a terrace (total of approx. 34 m² of outdoor space);
- The property is equipped with 3 solar panels;
- Small and active Homeowners’ Association; the front of the building was recently painted;
- Service charges amount to €139 per month;
- Transfer in consultation.

Interested?
Schedule a viewing appointment today and experience the rooftop terrace, the atmosphere, and the spaciousness of this home for yourself. Want to schedule a viewing online right away? Go to the property listing on our website and click “Schedule Appointment” in the bottom right corner. We’d love to show you this home!

Foto's

Van Hogendorpstraat 153 3, Amsterdam foto-0
Van Hogendorpstraat 153 3, Amsterdam foto-1
Van Hogendorpstraat 153 3, Amsterdam foto-2
Van Hogendorpstraat 153 3, Amsterdam foto-3
Van Hogendorpstraat 153 3, Amsterdam foto-4
Van Hogendorpstraat 153 3, Amsterdam foto-5
Van Hogendorpstraat 153 3, Amsterdam foto-6
Van Hogendorpstraat 153 3, Amsterdam foto-7
Van Hogendorpstraat 153 3, Amsterdam foto-8
Van Hogendorpstraat 153 3, Amsterdam foto-9
Van Hogendorpstraat 153 3, Amsterdam foto-10
Van Hogendorpstraat 153 3, Amsterdam foto-11
Van Hogendorpstraat 153 3, Amsterdam foto-12
Van Hogendorpstraat 153 3, Amsterdam foto-13
Van Hogendorpstraat 153 3, Amsterdam foto-14
Van Hogendorpstraat 153 3, Amsterdam foto-15
Van Hogendorpstraat 153 3, Amsterdam foto-16
Van Hogendorpstraat 153 3, Amsterdam foto-17
Van Hogendorpstraat 153 3, Amsterdam foto-18
Van Hogendorpstraat 153 3, Amsterdam foto-19
Van Hogendorpstraat 153 3, Amsterdam foto-20
Van Hogendorpstraat 153 3, Amsterdam foto-21
Van Hogendorpstraat 153 3, Amsterdam foto-22
Van Hogendorpstraat 153 3, Amsterdam foto-23
Van Hogendorpstraat 153 3, Amsterdam foto-24
Van Hogendorpstraat 153 3, Amsterdam foto-25
Van Hogendorpstraat 153 3, Amsterdam foto-26
Van Hogendorpstraat 153 3, Amsterdam foto-27
Van Hogendorpstraat 153 3, Amsterdam foto-28
Van Hogendorpstraat 153 3, Amsterdam foto-29
Van Hogendorpstraat 153 3, Amsterdam foto-30
Van Hogendorpstraat 153 3, Amsterdam foto-31
Van Hogendorpstraat 153 3, Amsterdam foto-32
Van Hogendorpstraat 153 3, Amsterdam foto-33
Van Hogendorpstraat 153 3, Amsterdam foto-34
Van Hogendorpstraat 153 3, Amsterdam foto-35
Van Hogendorpstraat 153 3, Amsterdam foto-36
Verkocht onder voorbehoud

Plattegronden

Van Hogendorpstraat 153 3, Amsterdam plattegrond-0
Van Hogendorpstraat 153 3, Amsterdam plattegrond-1
Van Hogendorpstraat 153 3, Amsterdam plattegrond-2
Van Hogendorpstraat 153 3, Amsterdam plattegrond-3

Locatie

[ { "address": "Van Hogendorpstraat 153", "zipCode": "1051 BN", "city": "Amsterdam", "lat": 52.3820725, "lng": 4.8680152, "heading": 0, "pitch": 0 } ]
[ { "featureType": "all", "elementType": "geometry.fill", "stylers": [ { "weight": "2.00" } ] }, { "featureType": "all", "elementType": "geometry.stroke", "stylers": [ { "color": "#9c9c9c" } ] }, { "featureType": "all", "elementType": "labels.text", "stylers": [ { "visibility": "on" } ] }, { "featureType": "landscape", "elementType": "all", "stylers": [ { "color": "#f2f2f2" } ] }, { "featureType": "landscape", "elementType": "geometry.fill", "stylers": [ { "color": "#ffffff" } ] }, { "featureType": "landscape.man_made", "elementType": "geometry.fill", "stylers": [ { "color": "#ffffff" } ] }, { "featureType": "poi", "elementType": "all", "stylers": [ { "visibility": "off" } ] }, { "featureType": "road", "elementType": "all", "stylers": [ { "saturation": -100 }, { "lightness": 45 } ] }, { "featureType": "road", "elementType": "geometry.fill", "stylers": [ { "color": "#eeeeee" } ] }, { "featureType": "road", "elementType": "labels.text.fill", "stylers": [ { "color": "#7b7b7b" } ] }, { "featureType": "road", "elementType": "labels.text.stroke", "stylers": [ { "color": "#ffffff" } ] }, { "featureType": "road.highway", "elementType": "all", "stylers": [ { "visibility": "simplified" } ] }, { "featureType": "road.arterial", "elementType": "labels.icon", "stylers": [ { "visibility": "off" } ] }, { "featureType": "transit", "elementType": "all", "stylers": [ { "visibility": "off" } ] }, { "featureType": "water", "elementType": "all", "stylers": [ { "color": "#46bcec" }, { "visibility": "on" } ] }, { "featureType": "water", "elementType": "geometry.fill", "stylers": [ { "color": "#c8d7d4" } ] }, { "featureType": "water", "elementType": "labels.text.fill", "stylers": [ { "color": "#070707" } ] }, { "featureType": "water", "elementType": "labels.text.stroke", "stylers": [ { "color": "#ffffff" } ] } ]