Van Gentstraat 16 H, Amsterdam

Vraagprijs € 650.000 k.k.

  Kan ik deze woning betalen?

Unieke kans! Thuis begint op de Van Gentstraat 16 H. *English text below* Wij nodigen je graag uit te komen kijken naar deze hoogwaardig gerenoveerde driekamer-benedenwoning met een heerlijke tuin. In 2012 is de woning intern gerenoveerd en is de huidige indeling...
Lees meer

Beeldmateriaal

Van Gentstraat 16 H, Amsterdam

Van Gentstraat 16 H, Amsterdam
Van Gentstraat 16 H, Amsterdam Van Gentstraat 16 H, Amsterdam Van Gentstraat 16 H, Amsterdam Van Gentstraat 16 H, Amsterdam

Omschrijving

Unieke kans! Thuis begint op de Van Gentstraat 16 H. *English text below* Wij nodigen je graag uit te komen kijken naar deze hoogwaardig gerenoveerde driekamer-benedenwoning met een heerlijke tuin. In 2012 is de woning intern gerenoveerd en is de huidige indeling...
Lees meer

Kenmerken

Adres
Van Gentstraat 16 H, 1055 PE Amsterdam
Woonoppervlakte
ca. 83m²
Inhoud
ca. 309m³
Aantal kamers
3
Bouwjaar
1937
Energielabel
C
Alle kenmerken

Kenmerken

Aanvaarding

Bijdrage VVE
€ 85
Status
Verkocht
Oplevering
In overleg
Adres
Van Gentstraat 16 H
Postcode
1055 PE
Plaats
Amsterdam

Bouw

Soort appartement
Benedenwoning, Appartement
Soort bouw
Bestaande bouw
Bouwjaar
1937
Onderhoud binnen
Uitstekend
Onderhoud buiten
Goed

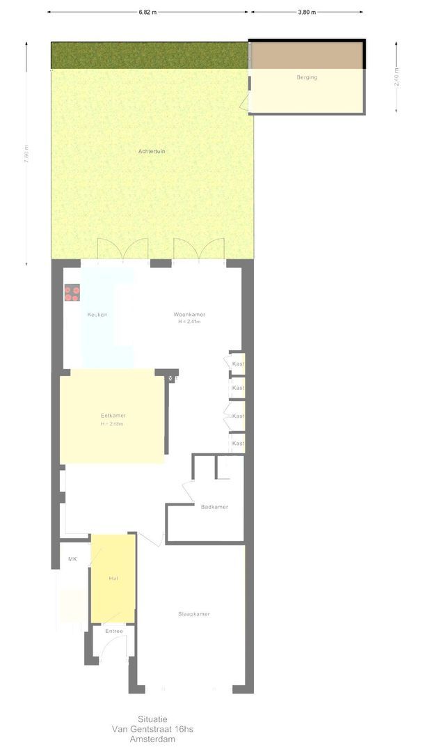
Oppervlakten en inhoud

Woonoppervlakte
ca. 83m²
Inhoud
ca. 309m³

Indeling

Aantal kamers
3
Aantal slaapkamers
2
Aantal badkamers
1
Aantal verdiepingen
1
Voorzieningen
Mechanische ventilatie, TV-Kabel

Energie

Energielabel
C
Isolatie
Dubbel glas, HR-glas
Warm water
C.V.-ketel
Verwarming
C.V.-ketel
Ketel
AWB Thermoelegance 3 (2012, Combi-ketel, Eigendom)

Buitenruimte

Ligging
Aan rustige weg, In woonwijk, Vrij uitzicht, Beschutte ligging
Tuin
Achtertuin
Achtertuin
Zuidoost, 52m², 682×760cm
Schuur
Vrijstaand hout

Omschrijving

Unieke kans! Thuis begint op de Van Gentstraat 16 H.
*English text below*
Wij nodigen je graag uit te komen kijken naar deze hoogwaardig gerenoveerde driekamer-benedenwoning met een heerlijke tuin.
In 2012 is de woning intern gerenoveerd en is de huidige indeling gerealiseerd. De woning is ruim 6 meter breed. Hierdoor beschik je over ruime kamers. Het woongedeelte is vergroot door de recent aangebrachte aanbouw aan de achterzijde. Wat opvalt na binnenkomst, is dat je vanuit de hal doorkijkt naar de aanbouw en de tuin. Dit versterkt het ruimtelijke gevoel en zorgt voor extra daglicht toetreding.

Er is gebruik gemaakt van hoogwaardige bouwmaterialen. Daarnaast zijn er mooie authentieke details aanwezig, zoals de paneeldeuren met fraai beslag die ervoor zorgen dat de sfeer van een jaren ’30 woning goed in balans is met modern leefcomfort.

Indeling:
De woning heeft een eigen entree vanaf de straat. Via het tochtportaal kom je in de hal met een doorloop naar de ruime woonkamer met het gedeelte waar voldoende ruimte is voor een grote eettafel. Het zitgedeelte vind je in de aanbouw. De open woonkeuken met eetbar is eveneens in de aanbouw aangebracht. Twee grote dubbele openslaande deuren geven toegang tot de tuin en zorgen voor extra lichtinval in de aanbouw. De fraaie inbouwkeuken is voorzien van diverse hoogwaardige inbouwapparatuur en een houten werkblad. De eetbar is de ideale plek voor een ontbijt of als borrelplek en is voorzien van een aantal handige opberglades. Het is heerlijk genieten van de tuin vanuit de tuingerichte woonkamer. Zomers lekker de openslaande deuren openzetten en je tuin het verlengstuk maken van je woonkamer!
De tuin is verzorgd en gelegen op de zuidoost zijde. Er is een vrijstaande houten berging voor de opslag van de tuinspullen.
In het middengedeelte heb je een studeerkamer. Deze is voorzien van een fraai geïntegreerd wandmeubel met veel opbergruimte. Een extra tweede slaapkamer is eenvoudig te creëren door het plaatsen van een tussenwand in de aanbouw.
Wij hebben een plattegrond waarin deze optie staat weergegeven op Funda toegevoegd.
Aan de voorzijde van de woning beschik je over een ruime slaapkamer. De moderne badkamer en het toilet vind je ook in het midden van de woning. Daarnaast is er nog een ruime bergkast onder de trap bij de hal.

Omgeving:
Het appartement is gelegen in de fijne en populaire Gibraltarbuurt in de wijk Bos en Lommer.
De Van Gentstraat is een rustige en brede straat. Aan de voorzijde heb je vrij uitzicht richting de monumentale Boomkerk en de Gibraltarstraat. De afgelopen jaren heeft de buurt zich snel ontwikkeld tot een fijne woonomgeving met alle dagelijkse voorzieningen nabij. De buurt herbergt diverse populaire en hippe horeca en voor je dagelijkse boodschappen zijn onder andere de Nieuwpoortstraat en de Bos en Lommerweg dichtbij. De Haarlemmerweg is een snelle verbinding naar de binnenstad. Op loopafstand zijn het Westerpark en de Jordaan gelegen voor een hapje, drankje, sport en theater. In enkele autominuten kom je op de Ring A-10 en op de fiets is het slechts 10 minuten naar het centrum van Amsterdam of NS Station Sloterdijk.
Betaald parkeren voor de deur middels een aan te vragen parkeervergunning.

Grondsituatie:
De jaarlijkse erfpachtcanon bedraagt € 407,75. De overstap naar het eeuwigdurende erfpachtstelsel onder de gunstige voorwaarden is reeds afgerond. Na 31 december 2050 is een jaarlijkse canon verschuldigd.

Vereniging van Eigenaren:
De woning is gelegen in een kleinschalige en actieve VvE bestaande uit 4 leden. Het beheer van de VvE wordt door de leden zelf uitgevoerd. De vereniging beschikt over een Meerjaren Onderhoudsplan. De belangrijkste VvE stukken zijn te vinden in het Move account.
De maandelijkse servicekosten bedragen € 85,-.

Zie jij jezelf al wonen in dit fijne appartement op deze populaire locatie? Bel ons dan snel voor het maken van een afspraak voor een uitgebreide bezichtiging!

Bijzonderheden:
- Bouwjaar 1937;
- Energielabel C;
- Ingemeten volgens de Branche Brede Meet Instructie;
- Gebruiksoppervlakte wonen; 82,5 m²;
- Super centrale en rustige ligging;
- Volledig intern gerenoveerd in 2012;
- De aanbouw is geplaatst in 2021;
- Ruime en verzorgde tuin van ca. 52 m² op het zuid-oosten;
- Sfeervolle woonkamer met open keuken en eetbar;
- Ruime slaapkamer en studeerkamer;
- Tweede extra slaapkamer is eenvoudig te realiseren door het plaatsen van een tussenwand in de aanbouw;
- Eigenaar is reeds overgestapt op eeuwigdurende erfpacht onder de gunstige voorwaarden;
- Kleinschalige en actieve VvE;
- Oplevering in overleg.

De verkoopinformatie is met grote zorgvuldigheid samengesteld doch voor de juistheid van de inhoud kunnen wij niet instaan en er kunnen derhalve geen rechten aan worden ontleend. De inhoud is puur informatief en mag niet worden beschouwd als een aanbod. Daar waar gesproken wordt over inhoud, oppervlakten of afmetingen moeten deze worden beschouwd als indicatief en als circa maten. U dient als koper zelf onderzoek te verrichten naar zaken die voor u van belang zijn. Wij raden u in dat verband aan uw eigen (NVM-)makelaar in te schakelen.

Unique opportunity! Home starts at the Van Gentstraat 16 H.

We would like to invite you to come and have a look at this high-quality renovated three-room ground floor apartment with a lovely garden.
In 2012 the house was renovated internally and the current layout was realized. The house is over 6 meters wide. As a result, you have spacious rooms at your disposal. The living area has been enlarged by the recently added extension at the rear. What is striking after entering is that from the hall you look through to the extension and the garden. This enhances the feeling of space and provides extra daylight.

High-quality building materials have been used. In addition, there are beautiful authentic details, such as the panel doors with beautiful fittings that ensure that the atmosphere of a 30s house is well balanced with modern living comfort.

Layout:
The house has its own entrance from the street. Through the enclosed porch you enter the hall with a passage to the spacious living room with the area where there is enough space for a large dining table. The seating area can be found in the extension. The open kitchen with breakfast bar is also installed in the extension. Two large double doors give access to the garden and provide extra light in the extension. The beautiful fitted kitchen is equipped with various high-quality built-in appliances and a wooden worktop. The bar is the ideal place for breakfast or as a place to have a drink and is equipped with a number of handy storage drawers. It is wonderful to enjoy the garden from the garden-oriented living room. Open the patio doors in the summer and make your garden an extension of your living room!
The garden is well-kept and located on the southeast side. There is a detached wooden shed for the storage of the garden equipment.
In the middle part you have a study. This is equipped with a beautifully integrated wall unit with plenty of storage space.
You can create an extra bedroom by only add a seperation wall in the extension.
We added an optional floorplan on Funda.
At the front of the house you have a spacious bedroom. The modern bathroom and toilet can also be found in the middle of the house. In addition, there is a spacious storage cupboard under the stairs near the hall.

Environment:
The apartment is located in the fine and popular Gibraltar neighborhood in the Bos en Lommer district.
The Van Gentstraat is a quiet and wide street. At the front you have an unobstructed view towards the monumental Boomkerk and the Gibraltarstraat. In recent years, the neighborhood has rapidly developed into a pleasant living environment with all daily amenities nearby. The neighborhood is home to various popular and trendy restaurants and for your daily shopping the Nieuwpoortstraat and the Bos en Lommerweg are nearby. The Haarlemmerweg is a fast connection to the city center. Within walking distance are the Westerpark and the Jordaan for a snack, drink, sports and theater. In a few minutes by car you can reach the Ring A-10 and by bike it is only 10 minutes to the center of Amsterdam or NS Station Sloterdijk.
Paid parking in front of the door by means of a parking permit to be applied for.

Ground situation:
The annual ground rent is € 407.75. The switch to the perpetual leasehold system under the favourable conditions has already been completed. After December 31, 2050, an annual ground rent is due.

Owners' Association:
The house is located in a small-scale and active VvE consisting of 4 members. The management of the VvE is carried out by the members themselves. The association has a Long-Term Maintenance Plan. The most important VvE documents can be found in the Move account.
The monthly service costs are € 85,-.

Can you already see yourself living in this nice apartment in this popular location? Then call us to make an appointment for an extensive viewing!

Details:
- Built in 1937;
- Energielabel C;
- Measured according to the Industry-wide Measurement Instruction;
- Usable living area; 82.5 m²;
- Super central and quiet location;
- Completely renovated internally in 2012;
- The extension was installed in 2021;
- Spacious and well-kept garden of approx. 52 m² on the south-east;
- Cozy living room with open kitchen and breakfast bar;
- 1 spacious master bedroom;
- A second bedroom is easily to create by putting a additional wall in the extension;
- The owner has already switched to perpetual leasehold under the favorable conditions;
- Small-scale and active VvE;
- Delivery in consultation.

The sales information has been compiled with great care, but we cannot guarantee the correctness of the content and therefore no rights can be derived from it. The content is for informational purposes only and should not be considered an offer. Where volumes, surfaces or dimensions are mentioned, these should be regarded as indicative and as approximate measurements. As a buyer, you must conduct your own research into matters that are important to you. In that context, we recommend that you engage your own (NVM) estate agent.

Foto's

Van Gentstraat 16 H, Amsterdam foto-0
Van Gentstraat 16 H, Amsterdam foto-1
Van Gentstraat 16 H, Amsterdam foto-2
Van Gentstraat 16 H, Amsterdam foto-3
Van Gentstraat 16 H, Amsterdam foto-4
Van Gentstraat 16 H, Amsterdam foto-5
Van Gentstraat 16 H, Amsterdam foto-6
Van Gentstraat 16 H, Amsterdam foto-7
Van Gentstraat 16 H, Amsterdam foto-8
Van Gentstraat 16 H, Amsterdam foto-9
Van Gentstraat 16 H, Amsterdam foto-10
Van Gentstraat 16 H, Amsterdam foto-11
Van Gentstraat 16 H, Amsterdam foto-12
Van Gentstraat 16 H, Amsterdam foto-13
Van Gentstraat 16 H, Amsterdam foto-14
Van Gentstraat 16 H, Amsterdam foto-15
Van Gentstraat 16 H, Amsterdam foto-16
Van Gentstraat 16 H, Amsterdam foto-17
Van Gentstraat 16 H, Amsterdam foto-18
Van Gentstraat 16 H, Amsterdam foto-19
Van Gentstraat 16 H, Amsterdam foto-20
Van Gentstraat 16 H, Amsterdam foto-21
Van Gentstraat 16 H, Amsterdam foto-22
Van Gentstraat 16 H, Amsterdam foto-23
Van Gentstraat 16 H, Amsterdam foto-24
Van Gentstraat 16 H, Amsterdam foto-25
Van Gentstraat 16 H, Amsterdam foto-26
Van Gentstraat 16 H, Amsterdam foto-27
Van Gentstraat 16 H, Amsterdam foto-28
Van Gentstraat 16 H, Amsterdam foto-29
Verkocht

Plattegronden

Van Gentstraat 16 H, Amsterdam plattegrond-0
Van Gentstraat 16 H, Amsterdam plattegrond-1
Van Gentstraat 16 H, Amsterdam plattegrond-2

Locatie

[ { "address": "Van Gentstraat 16", "zipCode": "1055 PE", "city": "Amsterdam", "lat": 52.383292, "lng": 4.8514736, "heading": 0, "pitch": 0 } ]
[ { "featureType": "all", "elementType": "geometry.fill", "stylers": [ { "weight": "2.00" } ] }, { "featureType": "all", "elementType": "geometry.stroke", "stylers": [ { "color": "#9c9c9c" } ] }, { "featureType": "all", "elementType": "labels.text", "stylers": [ { "visibility": "on" } ] }, { "featureType": "landscape", "elementType": "all", "stylers": [ { "color": "#f2f2f2" } ] }, { "featureType": "landscape", "elementType": "geometry.fill", "stylers": [ { "color": "#ffffff" } ] }, { "featureType": "landscape.man_made", "elementType": "geometry.fill", "stylers": [ { "color": "#ffffff" } ] }, { "featureType": "poi", "elementType": "all", "stylers": [ { "visibility": "off" } ] }, { "featureType": "road", "elementType": "all", "stylers": [ { "saturation": -100 }, { "lightness": 45 } ] }, { "featureType": "road", "elementType": "geometry.fill", "stylers": [ { "color": "#eeeeee" } ] }, { "featureType": "road", "elementType": "labels.text.fill", "stylers": [ { "color": "#7b7b7b" } ] }, { "featureType": "road", "elementType": "labels.text.stroke", "stylers": [ { "color": "#ffffff" } ] }, { "featureType": "road.highway", "elementType": "all", "stylers": [ { "visibility": "simplified" } ] }, { "featureType": "road.arterial", "elementType": "labels.icon", "stylers": [ { "visibility": "off" } ] }, { "featureType": "transit", "elementType": "all", "stylers": [ { "visibility": "off" } ] }, { "featureType": "water", "elementType": "all", "stylers": [ { "color": "#46bcec" }, { "visibility": "on" } ] }, { "featureType": "water", "elementType": "geometry.fill", "stylers": [ { "color": "#c8d7d4" } ] }, { "featureType": "water", "elementType": "labels.text.fill", "stylers": [ { "color": "#070707" } ] }, { "featureType": "water", "elementType": "labels.text.stroke", "stylers": [ { "color": "#ffffff" } ] } ]