Van Breestraat 65, Amsterdam
Vraagprijs Op aanvraag
English see below
Fantastisch herenhuis met unieke uitstraling en sfeer nabij het Vondelpark.
Het pand bestaat uit vijf verdiepingen met erker, balkon en achtergelegen kleine tuin (Zuid). Het geheel is sfeervol verbouwd met behoud van alle originele elementen...
Lees meer
Omschrijving
English see below
Fantastisch herenhuis met unieke uitstraling en sfeer nabij het Vondelpark.
Het pand bestaat uit vijf verdiepingen met erker, balkon en achtergelegen kleine tuin (Zuid). Het geheel is sfeervol verbouwd met behoud van alle originele elementen...
Lees meer
Kenmerken
- Adres
- Van Breestraat 65, 1071 ZG Amsterdam
- Woonoppervlakte
- ca. 287m²
- Perceeloppervlakte
- ca. 96m²
- Inhoud
- ca. 1.173m³
- Aantal kamers
- 9
- Bouwjaar
- 1899
- Energielabel
- C
Kenmerken
- Status
- Verkocht
- Oplevering
- In overleg
- Adres
- Van Breestraat 65
- Postcode
- 1071 ZG
- Plaats
- Amsterdam
Aanvaarding
Bouw
- Soort woonhuis
- Herenhuis, Tussenwoning
- Soort bouw
- Bestaande bouw
- Bouwjaar
- 1899
- Onderhoud binnen
- Goed
- Onderhoud buiten
- Goed
- Bijzonderheden
- Beschermd stads- of dorpgezicht
Oppervlakten en inhoud
- Woonoppervlakte
- ca. 287m²
- Perceeloppervlakte
- ca. 96m²
- Overig oppervlakte
- ca. 5m²
- Inhoud
- ca. 1.173m³
Indeling
- Aantal kamers
- 9
- Aantal slaapkamers
- 7
- Aantal badkamers
- 3
- Aantal verdiepingen
- 7
- Voorzieningen
- Mechanische ventilatie, TV-Kabel, Rookkanaal, Frans balkon, Dakraam, Natuurlijke ventilatie
Energie
- Energielabel
- C
- Isolatie
- Dakisolatie, Grotendeels dubbelglas, HR-glas
- Warm water
- C.V.-ketel
- Verwarming
- C.V.-ketel
- Ketel
- Remeha (2019, Combi-ketel, Eigendom)
Buitenruimte
- Ligging
- Aan rustige weg, In woonwijk
- Balkon
- Ja
- Tuin
- Achtertuin
- Achtertuin
- Zuid, 23m², 557×418cm
Omschrijving
English see belowFantastisch herenhuis met unieke uitstraling en sfeer nabij het Vondelpark.
Het pand bestaat uit vijf verdiepingen met erker, balkon en achtergelegen kleine tuin (Zuid). Het geheel is sfeervol verbouwd met behoud van alle originele elementen en prachtige plafonds op de woon- en slaapverdieping.
Indeling:
Souterrain: gang, toilet, badkamer, berging, slaapkamer, stookruimte.
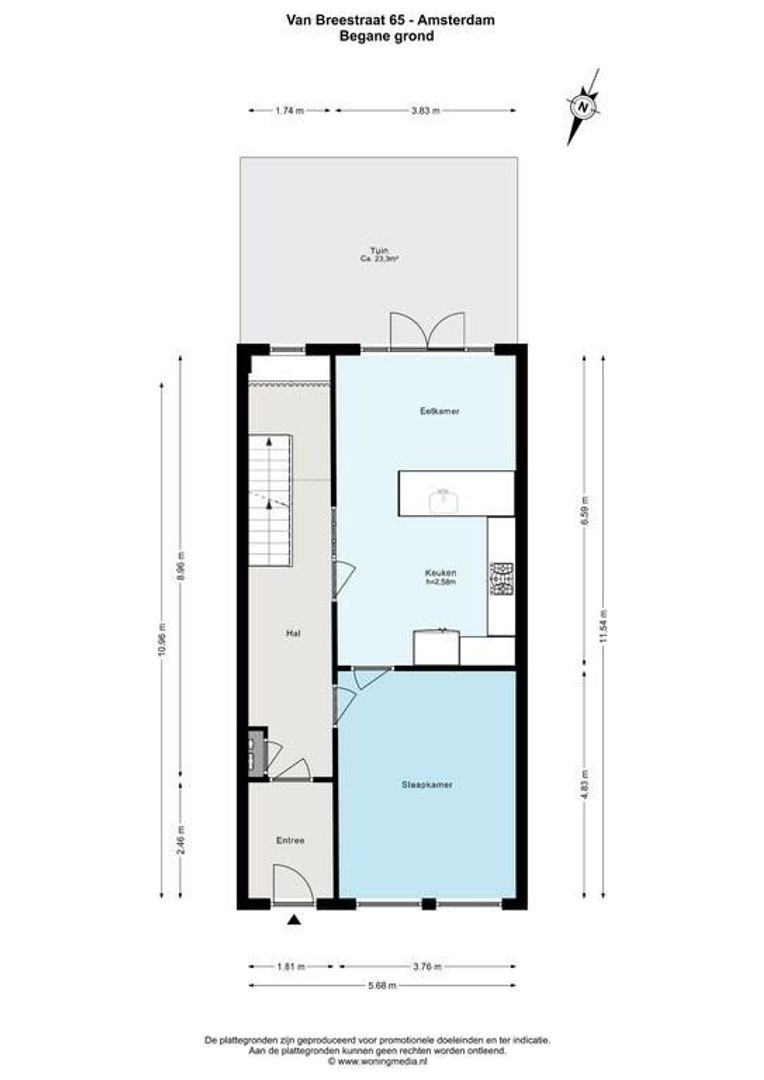
Begane grond: hal, gang v.v. marmeren vloeren, woonkeuken en voorkamer met tegelvloer en vloerverwarming, toegang naar achtergelegen tuin (zuid)
Tussenverdieping: toilet
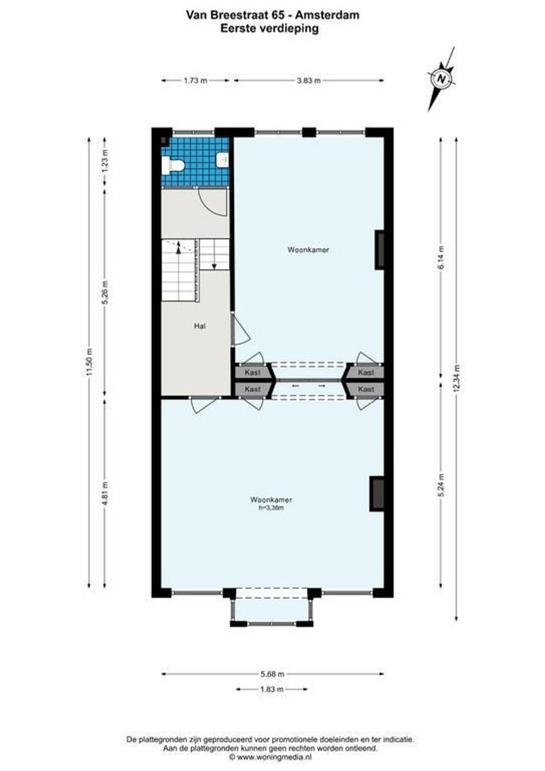
Eerste verdieping: gang, woonkamer en suite met erker, openhaard (gas) en houten vloer.
Tussenverdieping: douche/toiletcombinatie.
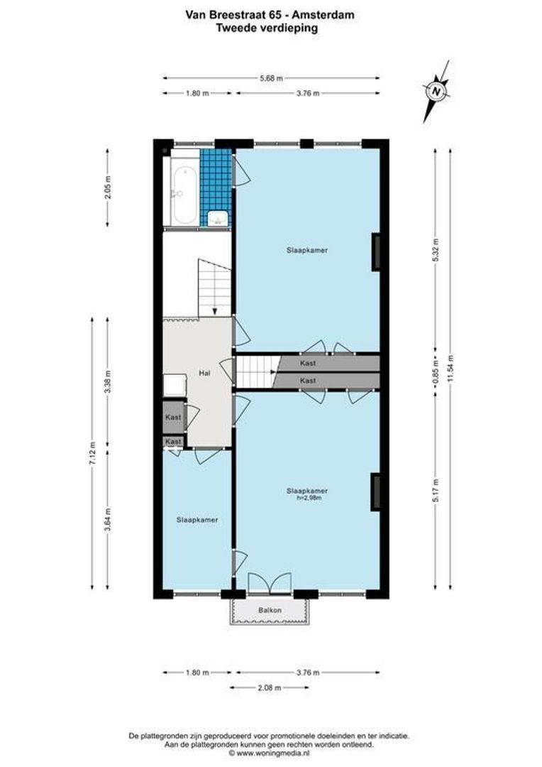
Tweede verdieping: gang, slaapkamer met aangesloten badkamer v.v. ligbad, slaapkamer met klein balkon, zijkamer.
Kapverdieping: hal, berging, twee slaapkamers.
Omgeving:
Gelegen op geweldige locatie in het eerste gedeelte van de Van Breestraat (nabij de Jacob Obrechtstraat).
Nabij alle voorzieningen: gezellige biomarkt op zaterdag op het plein, horeca en winkels in de Corn. Schuitstraat, toegang naar het Vondelpark. Om de hoek van het Concertgebouw en Musea.
Bereikbaarheid:
Goed bereikbaar met de auto en uitstekende bus- en tramverbindingen.
Bijzonderheden:
Eigen grond
Uniek herenhuis bestaande uit 5 verdiepingen met 2 speelse tussenverdiepingen.
Fundering van het pand en van de beide buren vernieuwd in 2008.
Fraaie geëtste ramen.
Prachtige gerestaureerde plafonds met extra verdiepingshoogte op de woonverdieping.
Beschermd stadsgezicht Oud-Zuid.
Gerenoveerd met behoud van originele elementen.
Fraaie lichtinval s ochtends aan achterzijde einde van de dag aan de voorzijde.
De algemene NEN-clausule is van toepassing.
English version:
Fantastic townhouse with unique look and feel near Vondelpark.
The property consists of five floors with bay window, balcony and small garden at the back (south). The property has been tastefully renovated while retaining all original features and beautiful ceilings on the living and bedroom floors.
Layout:
Basement: hallway, toilet, bathroom, storage room, bedroom, boiler room.
Ground floor: hall, corridor with marble floors, living kitchen and front room with tiled floor and underfloor heating, access to rear garden (south)
Middle floor: toilet
First floor: corridor, living room en suite with bay window, fireplace (gas) and wooden floor.
Mezzanine floor: shower/toilet combination.
Second floor: hallway, bedroom with attached bathroom with bathtub, bedroom with small balcony, side room.
Upper floor: hallway, storage room, two bedrooms.
Surroundings:
Situated in great location in the first part of the Van Breestraat (near Jacob Obrechtstraat).
Close to all amenities: cosy biomarket on Saturday on the square, restaurants and shops in the Corn. Schuitstraat, access to the Vondelpark. Around the corner from the Concertgebouw and Museums.
Accessibility:
easily accessible by car and excellent bus and tram connections.
Details:
Own land
Unique townhouse consisting of 5 floors with 2 playful mezzanines.
Foundations of the property and both neighbours renewed in 2008.
Beautiful etched windows.
Beautifully restored ceilings with extra storey height on the living floor.
Protected cityscape Oud-Zuid.
Renovated while retaining original features.
Beautiful light in the morning at the back end of the day at the front.
General NEN clause applies.
Foto's
Plattegronden
Locatie
[
{
"address": "Van Breestraat 65",
"zipCode": "1071 ZG",
"city": "Amsterdam",
"lat": 52.3564711,
"lng": 4.8754731,
"heading": 0,
"pitch": 0
}
]
[
{
"featureType": "all",
"elementType": "geometry.fill",
"stylers": [
{
"weight": "2.00"
}
]
},
{
"featureType": "all",
"elementType": "geometry.stroke",
"stylers": [
{
"color": "#9c9c9c"
}
]
},
{
"featureType": "all",
"elementType": "labels.text",
"stylers": [
{
"visibility": "on"
}
]
},
{
"featureType": "landscape",
"elementType": "all",
"stylers": [
{
"color": "#f2f2f2"
}
]
},
{
"featureType": "landscape",
"elementType": "geometry.fill",
"stylers": [
{
"color": "#ffffff"
}
]
},
{
"featureType": "landscape.man_made",
"elementType": "geometry.fill",
"stylers": [
{
"color": "#ffffff"
}
]
},
{
"featureType": "poi",
"elementType": "all",
"stylers": [
{
"visibility": "off"
}
]
},
{
"featureType": "road",
"elementType": "all",
"stylers": [
{
"saturation": -100
},
{
"lightness": 45
}
]
},
{
"featureType": "road",
"elementType": "geometry.fill",
"stylers": [
{
"color": "#eeeeee"
}
]
},
{
"featureType": "road",
"elementType": "labels.text.fill",
"stylers": [
{
"color": "#7b7b7b"
}
]
},
{
"featureType": "road",
"elementType": "labels.text.stroke",
"stylers": [
{
"color": "#ffffff"
}
]
},
{
"featureType": "road.highway",
"elementType": "all",
"stylers": [
{
"visibility": "simplified"
}
]
},
{
"featureType": "road.arterial",
"elementType": "labels.icon",
"stylers": [
{
"visibility": "off"
}
]
},
{
"featureType": "transit",
"elementType": "all",
"stylers": [
{
"visibility": "off"
}
]
},
{
"featureType": "water",
"elementType": "all",
"stylers": [
{
"color": "#46bcec"
},
{
"visibility": "on"
}
]
},
{
"featureType": "water",
"elementType": "geometry.fill",
"stylers": [
{
"color": "#c8d7d4"
}
]
},
{
"featureType": "water",
"elementType": "labels.text.fill",
"stylers": [
{
"color": "#070707"
}
]
},
{
"featureType": "water",
"elementType": "labels.text.stroke",
"stylers": [
{
"color": "#ffffff"
}
]
}
]
Meer informatie?

Neem direct contact op met Leen Cornelisse RM RT LRGD via 0206001600. Mailen kan ook: leen@ameo.nl
Voor algemene vragen kunt u ook het contactformulier gebruiken.
Neem contact op