Martini van Geffenstraat 32, Amsterdam
Vraagprijs € 445.000 k.k.
Ruime maisonnette (91 m²) met zonnige voortuin, twee slaapkamers en eigen parkeerplaats in hartje Osdorp!
Op zoek naar een goed onderhouden woning in Amsterdam Nieuw-West met alles binnen handbereik? Dan is Martini van Geffenstraat 32 wat u zoekt. Deze...
Lees meer
Omschrijving
Ruime maisonnette (91 m²) met zonnige voortuin, twee slaapkamers en eigen parkeerplaats in hartje Osdorp!
Op zoek naar een goed onderhouden woning in Amsterdam Nieuw-West met alles binnen handbereik? Dan is Martini van Geffenstraat 32 wat u zoekt. Deze...
Lees meer
Kenmerken
- Adres
- Martini van Geffenstraat 32, 1068 GL Amsterdam
- Woonoppervlakte
- ca. 91m²
- Inhoud
- ca. 341m³
- Aantal kamers
- 3
- Bouwjaar
- 2002
- Energielabel
- A
Kenmerken
- Bijdrage VVE
- € 211
- Status
- Verkocht
- Oplevering
- In overleg
- Adres
- Martini van Geffenstraat 32
- Postcode
- 1068 GL
- Plaats
- Amsterdam
Aanvaarding
Bouw
- Soort appartement
- Dubbel benedenhuis, Appartement
- Woonlaag
- 1
- Soort bouw
- Bestaande bouw
- Bouwjaar
- 2002
- Onderhoud binnen
- Goed
- Onderhoud buiten
- Goed
Oppervlakten en inhoud
- Woonoppervlakte
- ca. 91m²
- Oppervlakte woonkamer
- ca. 32m²
- Inhoud
- ca. 341m³
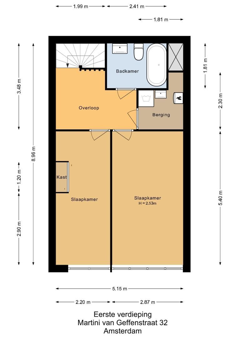
Indeling
- Aantal kamers
- 3
- Aantal slaapkamers
- 2
- Aantal badkamers
- 1
- Aantal verdiepingen
- 2
- Voorzieningen
- Mechanische ventilatie, TV-Kabel
Energie
- Energielabel
- A
- Isolatie
- Volledig geisoleerd
- Warm water
- C.V.-ketel
- Verwarming
- C.V.-ketel
- Ketel
- (Eigendom)
Buitenruimte
- Ligging
- Aan rustige weg, In woonwijk
- Tuin
- Voortuin
- Voortuin
- Zuidwest, 15m², 515×300cm
- Schuur
- Aangebouwd steen
Garage
- Soort garage
- Parkeerplaats
Omschrijving
Ruime maisonnette (91 m²) met zonnige voortuin, twee slaapkamers en eigen parkeerplaats in hartje Osdorp!Op zoek naar een goed onderhouden woning in Amsterdam Nieuw-West met alles binnen handbereik? Dan is Martini van Geffenstraat 32 wat u zoekt. Deze comfortabele maisonnette van 91 m² beschikt over twee ruime slaapkamers, een voortuin op het zuidwesten, een externe berging én een eigen ondergrondse parkeerplaats. De woning is verdeeld over de begane grond en eerste verdieping van het architectonisch bekroonde Europan-complex (bouwjaar 2002), midden in het stadshart van Osdorp.
Ligging:
De woning ligt op een zeer centrale en gewilde locatie, pal naast het winkelcentrum Osdorpplein. Supermarkten, winkels, restaurants en culturele voorzieningen zoals theater De Meervaart bevinden zich op loopafstand. Voor ontspanning liggen de Sloterplas, het Botteskerkpark en het Stadspark Osdorp binnen handbereik. Dankzij tram- en bushaltes om de hoek en station Lelylaan op fietsafstand is de bereikbaarheid uitstekend. Binnen enkele minuten zit u op de A10 of A9.
Indeling:
Via de voortuin met middag- en avondzon betreedt u de woning. De begane grond biedt een lichte, royale woonkamer met hoge plafonds en ramen tot op de vloer, wat zorgt voor een aangename lichtinval. De open keuken vormt een samenhangend geheel met de rest van de leefruimte en is prettig in gebruik. Hoewel de afwerking verouderd is, biedt dit juist een mooie kans voor de nieuwe bewoner om de ruimte naar eigen smaak en in een moderne stijl in te richten.
Grenzend aan de woonkamer bevindt zich een hal met toilet en trapopgang. Op de eerste verdieping vindt u twee goed bemeten slaapkamers met houten parketvloeren, een ruime overloop (eventueel te gebruiken als werkplek), een wasruimte en de badkamer. De badkamer is voorzien van een ligbad met douchefunctie, tweede toilet en wastafelmeubel.
Het geheel oogt wat gedateerd, maar is duidelijk met zorg onderhouden en verkeert in een zeer schone en hygiënische staat.
Buitenruimte en voorzieningen:
De woning beschikt over een heerlijk brede voortuin op het zuidwesten, ideaal voor een zitje in de zon. Verder is er een grote externe berging en een eigen parkeerplaats in de beveiligde, ondergrondse parkeergarage. Voor bewoners is er een besloten, gezamenlijke binnentuin met speelplek voor kinderen. Het complex beschikt over camerabeveiliging en een huismeester.
Vereniging van Eigenaren:
De actieve en professioneel beheerde VvE (Europan 1) omvat 112 woningen, 106 bergingen en 102 parkeerplaatsen. Er wordt periodiek gespaard en er is een meerjarenonderhoudsplan aanwezig. Daarnaast vindt er jaarlijks een algemene leden vergadering plaats. De maandelijkse bijdrage bedraagt € 211,91.
Erfpacht:
De Algemene Bepalingen voor Voortdurende Erfpacht 1994 zijn van toepassing. De erfpacht is voor het huidige tijdvak vooruitbetaald tot 1 september 2050.
Bijzonderheden:
- Energielabel A
- Woonoppervlakte 91 m² (NEN 2580 meetrapport aanwezig)
- Twee ruime slaapkamers
- Zonnige voortuin op het zuidwesten
- Eigen parkeerplaats en externe berging
- Gelegen in het centrum van Osdorp, nabij winkels, horeca en recreatie
- Gezamenlijke binnentuin met speelplek
- Erfpacht afgekocht tot 2050
- Oplevering in overleg
Geïnteresseerd? Vraag snel een bezichtiging aan en ontdek zelf de pluspunten van deze aantrekkelijke woning!
Foto's
Plattegronden
Locatie
[
{
"address": "Martini van Geffenstraat 32",
"zipCode": "1068 GL",
"city": "Amsterdam",
"lat": 52.3577974,
"lng": 4.8030087,
"heading": 0,
"pitch": 0
}
]
[
{
"featureType": "all",
"elementType": "geometry.fill",
"stylers": [
{
"weight": "2.00"
}
]
},
{
"featureType": "all",
"elementType": "geometry.stroke",
"stylers": [
{
"color": "#9c9c9c"
}
]
},
{
"featureType": "all",
"elementType": "labels.text",
"stylers": [
{
"visibility": "on"
}
]
},
{
"featureType": "landscape",
"elementType": "all",
"stylers": [
{
"color": "#f2f2f2"
}
]
},
{
"featureType": "landscape",
"elementType": "geometry.fill",
"stylers": [
{
"color": "#ffffff"
}
]
},
{
"featureType": "landscape.man_made",
"elementType": "geometry.fill",
"stylers": [
{
"color": "#ffffff"
}
]
},
{
"featureType": "poi",
"elementType": "all",
"stylers": [
{
"visibility": "off"
}
]
},
{
"featureType": "road",
"elementType": "all",
"stylers": [
{
"saturation": -100
},
{
"lightness": 45
}
]
},
{
"featureType": "road",
"elementType": "geometry.fill",
"stylers": [
{
"color": "#eeeeee"
}
]
},
{
"featureType": "road",
"elementType": "labels.text.fill",
"stylers": [
{
"color": "#7b7b7b"
}
]
},
{
"featureType": "road",
"elementType": "labels.text.stroke",
"stylers": [
{
"color": "#ffffff"
}
]
},
{
"featureType": "road.highway",
"elementType": "all",
"stylers": [
{
"visibility": "simplified"
}
]
},
{
"featureType": "road.arterial",
"elementType": "labels.icon",
"stylers": [
{
"visibility": "off"
}
]
},
{
"featureType": "transit",
"elementType": "all",
"stylers": [
{
"visibility": "off"
}
]
},
{
"featureType": "water",
"elementType": "all",
"stylers": [
{
"color": "#46bcec"
},
{
"visibility": "on"
}
]
},
{
"featureType": "water",
"elementType": "geometry.fill",
"stylers": [
{
"color": "#c8d7d4"
}
]
},
{
"featureType": "water",
"elementType": "labels.text.fill",
"stylers": [
{
"color": "#070707"
}
]
},
{
"featureType": "water",
"elementType": "labels.text.stroke",
"stylers": [
{
"color": "#ffffff"
}
]
}
]
Meer informatie?

Neem direct contact op met Leen Cornelisse RM RT LRGD via 0206001600. Mailen kan ook: leen@ameo.nl
Voor algemene vragen kunt u ook het contactformulier gebruiken.
Neem contact op