Joan Melchior Kemperstraat 132 2, Amsterdam

Vraagprijs € 400.000 k.k.

  Kan ik deze woning betalen?

Thuis begint in dit gerenoveerde en perfect ingedeelde tweekamer appartement met twee balkons, centraal gelegen in de populaire Staatsliedenbuurt om de hoek van het Westerpark en de Jordaan! *English text below* Indeling: Vanuit het gemeenschappelijke en verzorgde...
Lees meer

Beeldmateriaal

Joan Melchior Kemperstraat 132 2, Amsterdam

Joan Melchior Kemperstraat 132 2, Amsterdam
Joan Melchior Kemperstraat 132 2, Amsterdam Joan Melchior Kemperstraat 132 2, Amsterdam Joan Melchior Kemperstraat 132 2, Amsterdam Joan Melchior Kemperstraat 132 2, Amsterdam

Omschrijving

Thuis begint in dit gerenoveerde en perfect ingedeelde tweekamer appartement met twee balkons, centraal gelegen in de populaire Staatsliedenbuurt om de hoek van het Westerpark en de Jordaan! *English text below* Indeling: Vanuit het gemeenschappelijke en verzorgde...
Lees meer

Kenmerken

Adres
Joan Melchior Kemperstraat 132 2, 1051 TX Amsterdam
Woonoppervlakte
ca. 48m²
Inhoud
ca. 165m³
Aantal kamers
2
Bouwjaar
1907
Energielabel
A
Alle kenmerken

Kenmerken

Aanvaarding

Bijdrage VVE
€ 100
Status
Verkocht
Oplevering
In overleg
Adres
Joan Melchior Kemperstraat 132 2
Postcode
1051 TX
Plaats
Amsterdam

Bouw

Soort appartement
Bovenwoning, Appartement
Soort bouw
Bestaande bouw
Bouwjaar
1907
Onderhoud binnen
Goed
Onderhoud buiten
Goed

Oppervlakten en inhoud

Woonoppervlakte
ca. 48m²
Inhoud
ca. 165m³

Indeling

Aantal kamers
2
Aantal slaapkamers
1
Aantal badkamers
1
Aantal verdiepingen
1
Voorzieningen
Mechanische ventilatie, TV-Kabel, Frans balkon

Energie

Energielabel
A
Isolatie
Dubbel glas
Warm water
C.V.-ketel
Verwarming
C.V.-ketel
Ketel
Intergas HRE 28/24A (2024, Combi-ketel, Eigendom)

Buitenruimte

Ligging
In centrum, In woonwijk, Beschutte ligging
Balkon
Ja

Omschrijving

Thuis begint in dit gerenoveerde en perfect ingedeelde tweekamer appartement met twee balkons, centraal gelegen in de populaire Staatsliedenbuurt om de hoek van het Westerpark en de Jordaan!
*English text below*
Indeling:
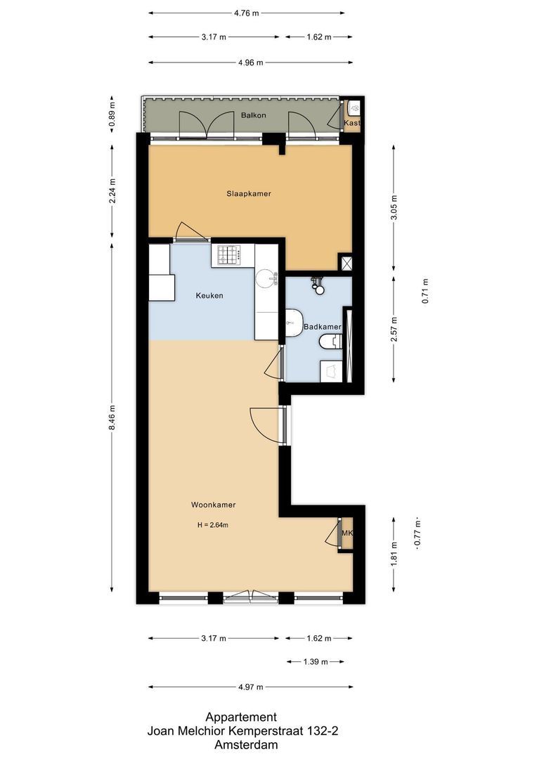
Vanuit het gemeenschappelijke en verzorgde trappenhuis kom je de woning binnen op de tweede verdieping. Aan de straatzijde bevindt zich de woonkamer. De drie grote raamvensters zorgen hier voor veel lichtinval en het hoge plafond zorgt voor een ruimtelijk gevoel. Er is een Frans balkon met een zuid ligging waarbij je zomers het buitengevoel in jouw woonkamer brengt. De woonkeuken staat in een hoekopstelling en is voorzien van een inbouwkeuken, welke beschikt over alle benodigde inbouwapparatuur zoals een koelkast met vriesladen, combi-oven, vaatwasser, 4 pits gaststel en een afzuigkap. Aan de achterzijde vind je een ruime slaapkamer. Hier is voldoende ruimte voor een groot bed, een werkplek en een kledingkast. Vanuit de slaapkamer kom je op het balkon welke is gelegen op de noordkant. Het balkon is over de gehele breedte van de woning dus hier kun je makkelijk met vrienden genieten van de namiddagzon.
In het middengedeelte is een ruime badkamer aangebracht. De badkamer is voorzien van een toilet, wastafel, inloopdouche en de wasmachine aansluiting. De badkamer is volledig betegeld en voorzien van een fraaie granito vloer.

De woning is voorzien van een hoogwaardige houten lamel parketvloer, de wanden en plafonds zijn netjes afgewerkt en er is een mechanisch ventilatiesysteem aanwezig. De kozijnen zijn voorzien van dubbele beglazing met draaikiep ramen aan de voorzijde. Er is een centraal verwarmingssysteem met radiatoren, de HRE CV combiketel is vernieuwd in 2024.

Het pand is in november 2002 met de vereiste splitsingsvergunning van de Gemeente Amsterdam gesplitst in appartementsrechten. Recent heeft de woning Energielabel A gekregen.

De VvE bestaat uit 4 appartementsrechten. De administratie van de VvE wordt gevoerd door de leden zelf. Er is recent een Meerjaren Onderhoudsplan opgemaakt. De maandelijkse servicekosten bedragen € 100,-.

Omgeving:
De Staatsliedenbuurt heeft zich in een rap tempo ontwikkeld tot hippe hotspot. Om te beginnen kun je jezelf straks gelukkig prijzen met Trattoria Bella Storia, misschien wel de beste pizza's van Amsterdam of Buurman voor heerlijke broodjes Falafel Fallafel of Sabich of de Thai Pie Nong op de brug bij de Nassaukade. Verder zijn er cafés en restaurants in overvloed. Gevestigde namen waar het heerlijk vertoeven is, zijn: Cafe Restaurant Amsterdam, Primi bar, Mossel & Gin, Pendergast, Café Beurre, Café Caribe en last but not least Café Restaurant Piet de Gruyter. Naast dit alles heb je straks misschien ook nog eens het Westerpark als je nieuwe achtertuin, met de vele leuke plekken van de Westergasfabriek. Je dagelijkse boodschappen kun je doen bij de AH of de Dirk aan de Van Limburg Stirumstraat.

Bereikbaarheid:
De Joan Melchior Kemperstraat is goed bereikbaar met openbaar vervoer. Op de Van Limburg Stirumstraat en Van Hallstraat zijn meerdere tram- en bushaltes richting oa Amsterdam Centraal en het Leidseplein. Het NS-station Amsterdam Centraal ligt op circa 10 minuten fietsafstand van het appartement gelegen. Ook is de ligging ten opzichte van de ringweg A-10 west zeer gunstig, met de auto is deze binnen enkele minuten te bereiken via de Haarlemmerweg of de Spaarndammer tunnel. Parkeren gebeurt via vergunningensysteem op de openbare weg.

Bijzonderheden:
- Gelegen op eigen grond;
- Oorspronkelijk bouwjaar 1907;
- Het gebouw is gesplitst met vergunning in appartementsrechten in 2002;
- Energielabel A;
- Gebruiksoppervlakte wonen bedraagt 47,9 m² (meetrapport aanwezig);
- Twee balkons, een Frans balkon op het zuiden en een balkon grenzend aan de slaapkamer van 4,2 m² op het noorden;
- Geweldige centrale ligging, om de hoek van het Westerpark en de Jordaan;
- Maandelijkse servicekosten bedragen € 100,-;
- VVE in eigen beheer (4 eigenaren);
- Levering: in overleg.

Home starts in this renovated and perfectly laid out one-bedroom apartment with two balconies, centrally located in the popular Staatsliedenbuurt around the corner from the Westerpark and the Jordaan!

Layout:
From the communal and well-kept staircase you enter the house on the second floor. The living room is located on the street side. Three large windows provide plenty of light and the high ceiling creates a spacious feeling. There is a French balcony facing south where you brings the outdoor feeling into your living room in summer. The L-shaped kitchen is equipped with all the necessary built-in appliances such as a refrigerator with freezer drawers, combi oven, dishwasher, 4-burner gas set and an extractor hood. At the rear you will find a spacious bedroom. Here there is enough space for a large bed, a workplace and a wardrobe. From the bedroom you enter the balcony which is located on the north side. The balcony is over the entire width of the house, so you can easily enjoy the afternoon sun with friends.
In the middle part is a spacious bathroom. The bathroom has a toilet, sink, walk-in shower and washing machine connection. The bathroom is fully tiled and has a beautiful granite floor.

The house has a high-quality wooden parquet floor, the walls and ceilings are neatly finished and there is a mechanical ventilation system. The window frames are double glazed with tilt-and-turn windows at the front. There is a central heating system with radiators, the HRE central heating combi boiler was renewed in 2024.

In November 2002, the building was split into apartment rights with the required division permit from the Municipality of Amsterdam. Recently, the house has been awarded Energy Label A.

The VvE consists of 4 apartment rights. The administration of the VvE is carried out by the members themselves. A Long-Term Maintenance Plan has recently been drawn up. The monthly service costs are € 100,-.

Environment:
The Staatsliedenbuurt has rapidly developed into a hip hotspot. To start with, you can consider yourself lucky with Trattoria Bella Storia, perhaps the best pizzas in Amsterdam or Buurman for delicious sandwiches Falafel Fallafel or Sabich or the Thai Pie Nong on the bridge at the Nassaukade. Furthermore, there are cafes and restaurants galore. Established names where it is wonderful to stay are: Café Restaurant Amsterdam, Primi bar, Mossel & Gin, Pendergast, Café Beurre, Café Caribe and last but not least Café Restaurant Piet de Gruyter. In addition to all this, you may also have the Westerpark as your new backyard, with the many nice places of the Westergasfabriek. You can do your daily shopping at the AH or the Dirk on the Van Limburg Stirumstraat.

Accessibility:
The Joan Melchior Kemperstraat is easily accessible by public transport. On the Van Limburg Stirumstraat and Van Hallstraat there are several tram and bus stops in the direction of Amsterdam Central Station and Leidseplein, among others. The Amsterdam Central railway station is about 10 minutes by bike from the apartment. The location in relation to the A-10 west ring road is also very favorable, it can be reached by car within a few minutes via the Haarlemmerweg or the Spaarndammer tunnel. Parking is done via a permit system on the public road.

Details:
- Located on private land;
- Originally built in 1907;
- The building was split with permit into apartment rights in 2002;
- Energielabel A;
- Usable residential floor area is 47.9 m² (measurement report available);
- Two balconies, a French balcony facing south and a balcony adjacent to the bedroom of 4.2 m² facing north;
- Great central location, around the corner from the Westerpark and the Jordaan;
- Monthly service costs are € 100,-;
- VVE under own management (4 owners);
- Delivery: in consultation.

Foto's

Joan Melchior Kemperstraat 132 2, Amsterdam foto-0
Joan Melchior Kemperstraat 132 2, Amsterdam foto-1
Joan Melchior Kemperstraat 132 2, Amsterdam foto-2
Joan Melchior Kemperstraat 132 2, Amsterdam foto-3
Joan Melchior Kemperstraat 132 2, Amsterdam foto-4
Joan Melchior Kemperstraat 132 2, Amsterdam foto-5
Joan Melchior Kemperstraat 132 2, Amsterdam foto-6
Joan Melchior Kemperstraat 132 2, Amsterdam foto-7
Joan Melchior Kemperstraat 132 2, Amsterdam foto-8
Joan Melchior Kemperstraat 132 2, Amsterdam foto-9
Joan Melchior Kemperstraat 132 2, Amsterdam foto-10
Joan Melchior Kemperstraat 132 2, Amsterdam foto-11
Joan Melchior Kemperstraat 132 2, Amsterdam foto-12
Joan Melchior Kemperstraat 132 2, Amsterdam foto-13
Joan Melchior Kemperstraat 132 2, Amsterdam foto-14
Joan Melchior Kemperstraat 132 2, Amsterdam foto-15
Joan Melchior Kemperstraat 132 2, Amsterdam foto-16
Joan Melchior Kemperstraat 132 2, Amsterdam foto-17
Joan Melchior Kemperstraat 132 2, Amsterdam foto-18
Joan Melchior Kemperstraat 132 2, Amsterdam foto-19
Joan Melchior Kemperstraat 132 2, Amsterdam foto-20
Joan Melchior Kemperstraat 132 2, Amsterdam foto-21
Joan Melchior Kemperstraat 132 2, Amsterdam foto-22
Joan Melchior Kemperstraat 132 2, Amsterdam foto-23
Joan Melchior Kemperstraat 132 2, Amsterdam foto-24
Verkocht

Plattegronden

Joan Melchior Kemperstraat 132 2, Amsterdam plattegrond-0
Joan Melchior Kemperstraat 132 2, Amsterdam plattegrond-1

Locatie

[ { "address": "Joan Melchior Kemperstraat 132", "zipCode": "1051 TX", "city": "Amsterdam", "lat": 52.3848807, "lng": 4.8715979, "heading": 0, "pitch": 0 } ]
[ { "featureType": "all", "elementType": "geometry.fill", "stylers": [ { "weight": "2.00" } ] }, { "featureType": "all", "elementType": "geometry.stroke", "stylers": [ { "color": "#9c9c9c" } ] }, { "featureType": "all", "elementType": "labels.text", "stylers": [ { "visibility": "on" } ] }, { "featureType": "landscape", "elementType": "all", "stylers": [ { "color": "#f2f2f2" } ] }, { "featureType": "landscape", "elementType": "geometry.fill", "stylers": [ { "color": "#ffffff" } ] }, { "featureType": "landscape.man_made", "elementType": "geometry.fill", "stylers": [ { "color": "#ffffff" } ] }, { "featureType": "poi", "elementType": "all", "stylers": [ { "visibility": "off" } ] }, { "featureType": "road", "elementType": "all", "stylers": [ { "saturation": -100 }, { "lightness": 45 } ] }, { "featureType": "road", "elementType": "geometry.fill", "stylers": [ { "color": "#eeeeee" } ] }, { "featureType": "road", "elementType": "labels.text.fill", "stylers": [ { "color": "#7b7b7b" } ] }, { "featureType": "road", "elementType": "labels.text.stroke", "stylers": [ { "color": "#ffffff" } ] }, { "featureType": "road.highway", "elementType": "all", "stylers": [ { "visibility": "simplified" } ] }, { "featureType": "road.arterial", "elementType": "labels.icon", "stylers": [ { "visibility": "off" } ] }, { "featureType": "transit", "elementType": "all", "stylers": [ { "visibility": "off" } ] }, { "featureType": "water", "elementType": "all", "stylers": [ { "color": "#46bcec" }, { "visibility": "on" } ] }, { "featureType": "water", "elementType": "geometry.fill", "stylers": [ { "color": "#c8d7d4" } ] }, { "featureType": "water", "elementType": "labels.text.fill", "stylers": [ { "color": "#070707" } ] }, { "featureType": "water", "elementType": "labels.text.stroke", "stylers": [ { "color": "#ffffff" } ] } ]