Keizersgracht 351 B, Amsterdam
Asking price € 998.000 k.k.
A historic upstairs flat with modern comforts.
On the iconic Keizersgracht, a unique opportunity awaits you: a lovingly and carefully renovated 122 m² upstairs flat in a Rijksmonument from 1618. This property combines the history of Amsterdam's Grachtengordel with...
Read more
Description
A historic upstairs flat with modern comforts.
On the iconic Keizersgracht, a unique opportunity awaits you: a lovingly and carefully renovated 122 m² upstairs flat in a Rijksmonument from 1618. This property combines the history of Amsterdam's Grachtengordel with...
Read more
Details
- Address
- Keizersgracht 351 B, 1016 EJ Amsterdam
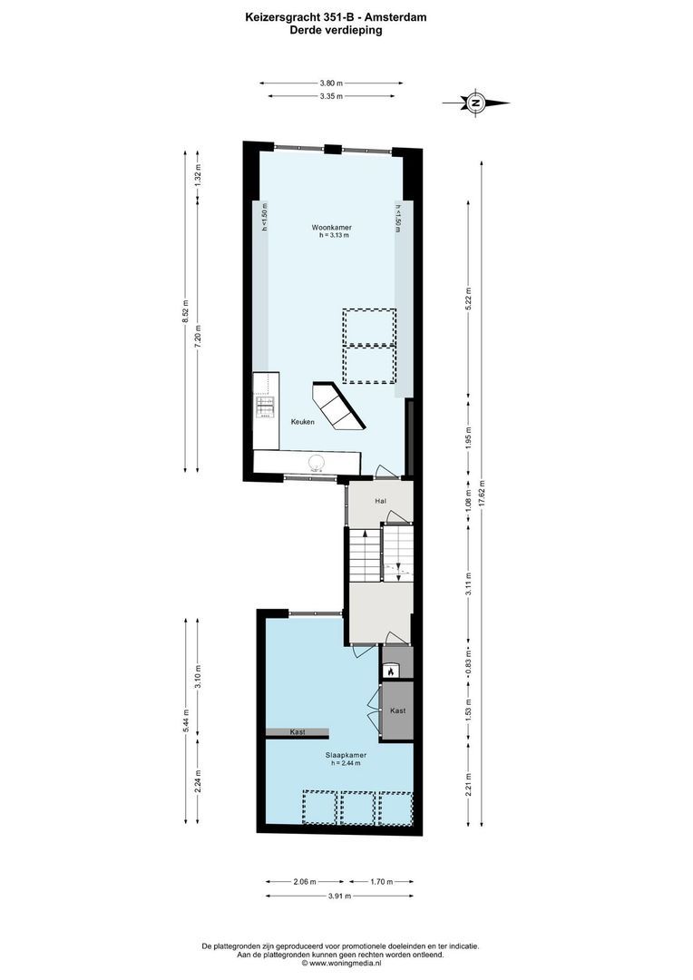
- Living surface
- ca. 122m²
- Volume
- ca. 435m³
- Rooms
- 4
- Build year
- 1618
Details
- Homeowners association costs
- € 250
- Status
- Sold
- Acceptance
- In consultation
- Address
- Keizersgracht 351 B
- Zipcode
- 1016 EJ
- City
- Amsterdam
Acceptance
Build
- Apartment type
- Upper floor apartment, Apartment
- Bottom floor
- 2
- Build type
- Existing
- Build year
- 1618
- Maintenance inside
- Good
- Maintenance outside
- Good
- Particulars
- Monument, Protected town view
Surface and volume
- Living surface
- ca. 122m²
- Volume
- ca. 435m³
Layout
- Rooms
- 4
- Bedrooms
- 3
- Bathrooms
- 2
- Number of floors
- 4
- Facilities
- Cable tv
Energy
- Isolation
- Roof insulation, Insulated glazing
- Hot water
- Central heating
- Heating
- Central heating
- Furnace
- Vaillant (2022, Combined furnace, Owned)
Description
A historic upstairs flat with modern comforts.On the iconic Keizersgracht, a unique opportunity awaits you: a lovingly and carefully renovated 122 m² upstairs flat in a Rijksmonument from 1618. This property combines the history of Amsterdam's Grachtengordel with contemporary comfort, such as two bathrooms, three toilets, double glazing and a sunny roof terrace.
With an asking price of € 998,000, this canal house offers the perfect balance between historical character and contemporary convenience.
Stylish living in Grachtengordel-West:
Grachtengordel-West offers a unique mix of culture, gastronomy and history. Around the corner you will find cosy cafés, boutique shops and world-famous museums. Moreover, you have excellent accessibility by both public transport and bicycle. Accessibility by car is surprisingly good due to the access via Rozengracht, Nassaukade and Jan van Galenstraat to the A10 ring road. Street parking is done according to the Amsterdam parking system where the waiting time for a parking permit is currently 11 months according to the municipality's website (source www.amsterdam.nl).
Space and possibilities:
Are you looking for a place where you can combine living and working? This property offers the possibility of a home practice. With its generous layout and central location, it is an excellent choice for creative entrepreneurs or professionals looking for living with a representative workspace. But with the presence of three spacious bedrooms, the third bedroom can also be set up as a nursery or guest room for family or friends, making the property usable by a large target group.
Moreover, the light court and spacious storage room in the basement provide additional light and storage options.
A national monument with character:
The property is designated as a Rijksmonument, which means you become the owner of a piece of Dutch history. From the rear and the roof terrace, you overlook the beautiful back gardens of neighbouring canal houses and a 150-year-old fabulous red beech tree.
The authentic elements have been beautifully preserved, while the house meets the requirements of modern residents.
The solid condition of the property, due to its renewed (concrete) foundations, and modern insulation offers this home not only aesthetic value but also structural stability - a particular plus in a city like Amsterdam.
Your future home:
Keizersgracht 351 B is more than a home; it is a place where you can live, work and enjoy all that city life has to offer. Make an appointment for a viewing and discover how this unique canal house can become your dream home.
Features:
- Located on private land
- Living area GO: 122 m²
- External storage room: 23 m²
- Roof terrace: 22 m²
- Energy label: Exemption due to national monument
- Equipped with double glazing
This property is perfect for the lover of authentic canal houses who wants to enjoy the lively city life, with the tranquillity of a private roof terrace.
Would you like to know more or plan a viewing? Please contact us.
Translated with DeepL.com (free version)
Photos
Floor plans
Location
[
{
"address": "Keizersgracht 351",
"zipCode": "1016 EJ",
"city": "Amsterdam",
"lat": 52.3690135,
"lng": 4.8849552,
"heading": 0,
"pitch": 0
}
]
[
{
"featureType": "all",
"elementType": "geometry.fill",
"stylers": [
{
"weight": "2.00"
}
]
},
{
"featureType": "all",
"elementType": "geometry.stroke",
"stylers": [
{
"color": "#9c9c9c"
}
]
},
{
"featureType": "all",
"elementType": "labels.text",
"stylers": [
{
"visibility": "on"
}
]
},
{
"featureType": "landscape",
"elementType": "all",
"stylers": [
{
"color": "#f2f2f2"
}
]
},
{
"featureType": "landscape",
"elementType": "geometry.fill",
"stylers": [
{
"color": "#ffffff"
}
]
},
{
"featureType": "landscape.man_made",
"elementType": "geometry.fill",
"stylers": [
{
"color": "#ffffff"
}
]
},
{
"featureType": "poi",
"elementType": "all",
"stylers": [
{
"visibility": "off"
}
]
},
{
"featureType": "road",
"elementType": "all",
"stylers": [
{
"saturation": -100
},
{
"lightness": 45
}
]
},
{
"featureType": "road",
"elementType": "geometry.fill",
"stylers": [
{
"color": "#eeeeee"
}
]
},
{
"featureType": "road",
"elementType": "labels.text.fill",
"stylers": [
{
"color": "#7b7b7b"
}
]
},
{
"featureType": "road",
"elementType": "labels.text.stroke",
"stylers": [
{
"color": "#ffffff"
}
]
},
{
"featureType": "road.highway",
"elementType": "all",
"stylers": [
{
"visibility": "simplified"
}
]
},
{
"featureType": "road.arterial",
"elementType": "labels.icon",
"stylers": [
{
"visibility": "off"
}
]
},
{
"featureType": "transit",
"elementType": "all",
"stylers": [
{
"visibility": "off"
}
]
},
{
"featureType": "water",
"elementType": "all",
"stylers": [
{
"color": "#46bcec"
},
{
"visibility": "on"
}
]
},
{
"featureType": "water",
"elementType": "geometry.fill",
"stylers": [
{
"color": "#c8d7d4"
}
]
},
{
"featureType": "water",
"elementType": "labels.text.fill",
"stylers": [
{
"color": "#070707"
}
]
},
{
"featureType": "water",
"elementType": "labels.text.stroke",
"stylers": [
{
"color": "#ffffff"
}
]
}
]
More information needed?

Neem direct contact op met Bram Meesters RM RT via 0206001600. Mailen kan ook: bram@ameo.nl
Voor algemene vragen kunt u ook het contactformulier gebruiken.
Contact us